Découvrez cette future construction d'une maison individuelle à Pacé, respectant les normes de la RE2020 pour une performance optimale.
Le terrain, d'une superficie de 366 m², est disponible pour un montant de 139000 €.
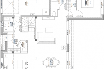
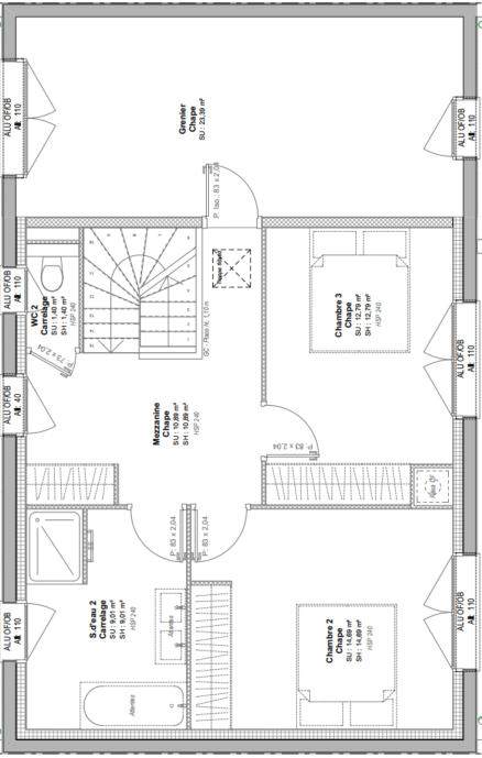
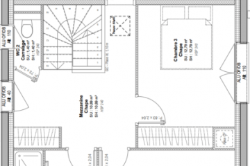
La maison proposée, d'une surface totale de 131 m², inclut un espace de vie généreux de 50 m². Cette habitation, conçue sur plusieurs niveaux, comporte 3 chambres, 1 mezzanine, 2 salles d'eau et bénéficie d'un garage.
Un grenier de 23 m² offre des possibilités supplémentaires d'aménagement.
Le coût total pour la maison est estimé à 305375 €, garantissant qualité et confort dans un cadre idéal.
Informations complémentaires
| Chambre(s) : 3 | Salle(s) de bain : 2 | Surface habitable : 131 m² |
| Surface terrain : 366 m² | Surface annexe : 50 m² | Garage(s) : 1 |
| Prix : 444 375 € |
Géolocalisation du bien
*Terrain proposé et vendu par notre partenaire foncier selon disponibilité et autorisation de publicité, prix du terrain hors frais de notaire et d’hypothèque.
Prix maison : hors papiers peints, peintures, revêtements de sol dans les chambres, cuisines, meubles vasques, et faïences (modifiable sans préavis, prix variables suivant les prestations souhaitées) hors frais d’hypothèque.





