MAISONS CRÉATION vous propose un projet de construction personnalisable situé à Noyal-Châtillon-sur-Seiche, commune dynamique de la première couronne de Rennes, à 5 km au sud de Rennes.
Le projet est implanté sur un terrain de 337 m².
Maison 119 m² – 4 chambres – Garage
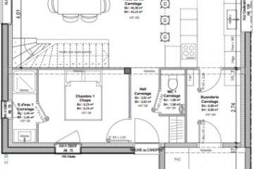
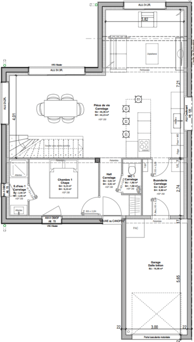
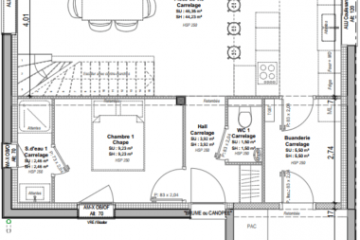
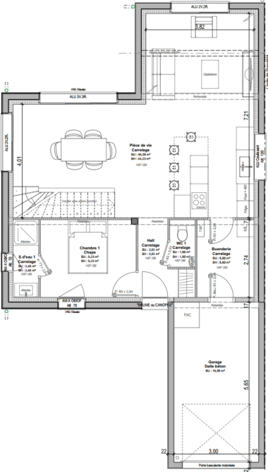
Cet exemple de maison de 119 m² habitables se compose :
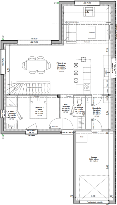
Au rez-de-chaussée :
- Une pièce de vie de 45 m², comprenant un salon avec hauteur déplafonnée
- Une arrière-cuisine
- Une chambre avec salle d’eau
- Des WC indépendants
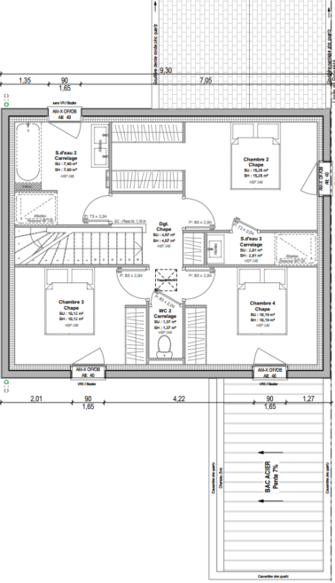
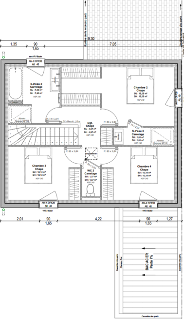
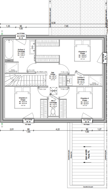
À l’étage :
- 3 chambres, dont une suite parentale avec salle d’eau attenante
- Une salle de bains commune
- Des WC indépendants
Annexes
- Un garage
Ce projet est entièrement personnalisable, selon vos envies et votre budget.
Pour plus de renseignements, contactez notre équipe commerciale MAISONS CRÉATION : 02 99 05 36 46
Informations complémentaires
| Chambre(s) : 4 | Salle(s) de bain : 3 | Surface habitable : 119 m² |
| Surface terrain : 337 m² | Surface annexe : 45 m² | Garage(s) : 1 |
| Prix : 305 000 € |
Géolocalisation du bien
*Terrain proposé et vendu par notre partenaire foncier selon disponibilité et autorisation de publicité, prix du terrain hors frais de notaire et d’hypothèque.
Prix maison : hors papiers peints, peintures, revêtements de sol dans les chambres, cuisines, meubles vasques, et faïences (modifiable sans préavis, prix variables suivant les prestations souhaitées) hors frais d’hypothèque.





