MAISONS CREATION vous propose un projet de construction situé à Mordelles, au cœur du quartier du Val de Sermon, dans un cadre de vie paisible, sur un terrain de 570 m².
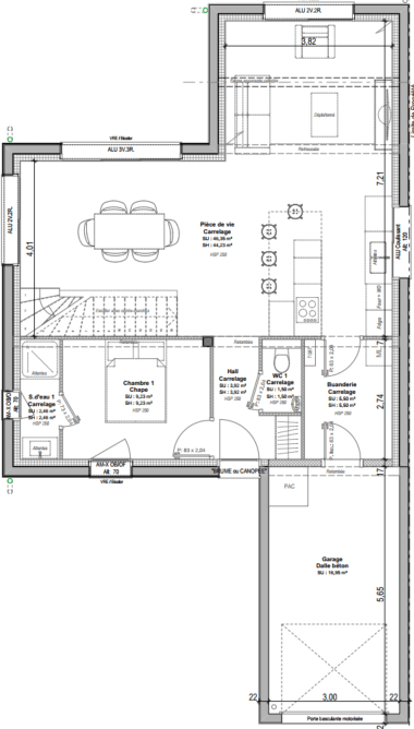
Cet exemple de maison de 119 m² habitables se compose :
Au rez-de-chaussée :
- Une entrée
- Une pièce de vie d’environ 45 m² avec cuisine ouverte
- Une buanderie
- Une chambre avec salle d’eau
- Des WC séparés
À l’étage :
- 2 chambres avec placards
- 1 chambre avec dressing et salle d’eau
- Une salle de bains
- Des WC indépendants
Annexes
- Un garage
Informations complémentaires
| Chambre(s) : 4 | Salle(s) de bain : 3 | Surface habitable : 119 m² |
| Surface terrain : 570 m² | Surface annexe : 48 m² | Garage(s) : 1 |
| Prix : 370 350 € |
Géolocalisation du bien
*Terrain proposé et vendu par notre partenaire foncier selon disponibilité et autorisation de publicité, prix du terrain hors frais de notaire et d’hypothèque.
Prix maison : hors papiers peints, peintures, revêtements de sol dans les chambres, cuisines, meubles vasques, et faïences (modifiable sans préavis, prix variables suivant les prestations souhaitées) hors frais d’hypothèque.





