Au cœur du quartier prisé du Val de Sermon à Mordelles, MAISONS CREATION vous propose un projet de construction dans un cadre de vie exceptionnel.
Découvrez des terrains exposés sud-ouest à partir de 215 m², offrant un ensoleillement optimal.
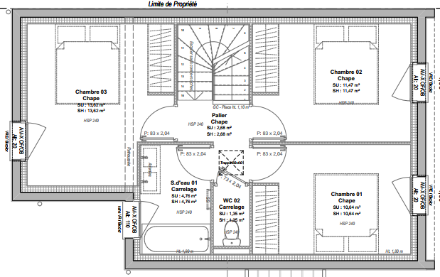
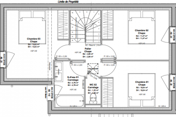
Nous vous proposons des maisons de 3 à 4 chambres, d'une surface habitable comprise entre 85 et 95 m², comprenant :
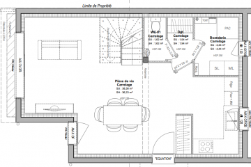
- Au rez-de-chaussée : une entrée, une belle pièce de vie d’environ 40 m² avec cuisine ouverte, une buanderie et des WC séparés. Une 4ème chambre est également envisageable.
- À l’étage : trois chambres équipées de placards, une salle de bains et des WC indépendants.
En option : carport, garage et abri de jardin pour compléter votre confort.
Pour en savoir plus, contactez-nous au 02 99 05 36 46.
Informations complémentaires
| Chambre(s) : 3 | Salle(s) de bain : 1 | Surface habitable : 95 m² |
| Surface terrain : 254 m² | Surface annexe : 40 m² | Garage(s) : 0 |
| Prix : 240 000 € |
Géolocalisation du bien
*Terrain proposé et vendu par notre partenaire foncier selon disponibilité et autorisation de publicité, prix du terrain hors frais de notaire et d’hypothèque.
Prix maison : hors papiers peints, peintures, revêtements de sol dans les chambres, cuisines, meubles vasques, et faïences (modifiable sans préavis, prix variables suivant les prestations souhaitées) hors frais d’hypothèque.





