Maisons Création vous propose sur la commune de Mordelles, sur un terrain non viabilisé en diffus de 800 m², proche des commodités et dans un cadre verdoyant, une maison de 124 m².
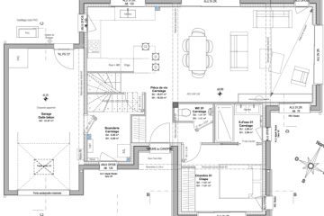
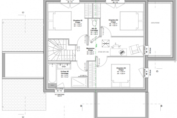
La maison se compose :
* au rez-de-chaussée : une vaste pièce de vie de 49m², une arrière-cuisine, une suite parentale et WC indépendants,
* à l'étage : 3 chambres ,une salle de bains et une mezzanine avec coin bureau et WC indépendants.
Garage compris.
Projet entièrement personnalisable.
Informations complémentaires
| Chambre(s) : 4 | Salle(s) de bain : 2 | Surface habitable : 124 m² |
| Surface terrain : 800 m² | Surface annexe : 49 m² | Garage(s) : 1 |
| Prix : 532 000 € |
Géolocalisation du bien
*Terrain proposé et vendu par notre partenaire foncier selon disponibilité et autorisation de publicité, prix du terrain hors frais de notaire et d’hypothèque.
Prix maison : hors papiers peints, peintures, revêtements de sol dans les chambres, cuisines, meubles vasques, et faïences (modifiable sans préavis, prix variables suivant les prestations souhaitées) hors frais d’hypothèque.





