MAISONS CRÉATION vous propose une belle opportunité de projet de construction située à Montfort-sur-Meu, bénéficiant d’un emplacement recherché, à proximité des écoles, de la crèche et du stade.
Le projet est implanté sur un terrain de 348 m², ensoleillé et arboré.
Maison familiale – 125 m² – 4 chambres + bureau – Garage
Cet exemple de maison de 125 m² habitables, composée de 6 pièces, se compose :
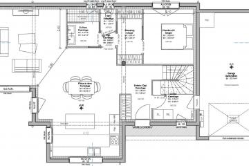
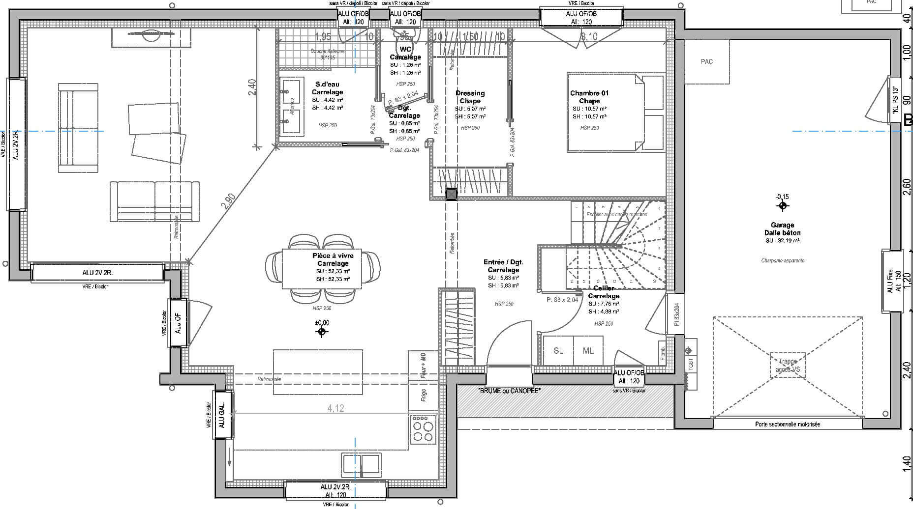
Au rez-de-chaussée :
- Une entrée
- Un salon / séjour de 52 m²
- Une cuisine ouverte
- Une suite parentale avec salle d’eau et dressing
- Une buanderie
- Des WC séparés
- Un garage attenant
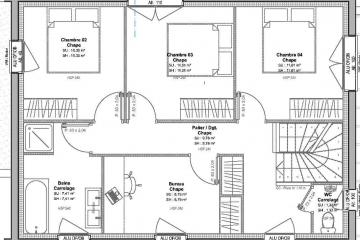
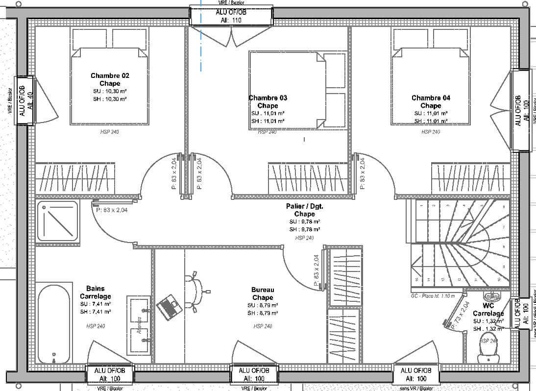
À l’étage :
- 3 chambres
- Un bureau
- Une salle de bains
- Un dégagement aéré
- Des WC séparés
Pour plus de renseignements, contactez notre équipe commerciale MAISONS CRÉATION : 02 99 05 36 46
Informations complémentaires
| Chambre(s) : 4 | Salle(s) de bain : 2 | Surface habitable : 125 m² |
| Surface terrain : 348 m² | Surface annexe : 52 m² | Garage(s) : 1 |
| Prix : 390 500 € |
Géolocalisation du bien
*Terrain proposé et vendu par notre partenaire foncier selon disponibilité et autorisation de publicité, prix du terrain hors frais de notaire et d’hypothèque.
Prix maison : hors papiers peints, peintures, revêtements de sol dans les chambres, cuisines, meubles vasques, et faïences (modifiable sans préavis, prix variables suivant les prestations souhaitées) hors frais d’hypothèque.




