À Vendre : Projet de Construction Maison Individuelle - Melesse (35)
Maisons Création vous propose un magnifique projet de construction sur un terrain de 381 m², idéalement situé hors lotissement, en plein centre de Melesse. Profitez d’une exposition Sud-Ouest pour un ensoleillement optimal tout au long de la journée !
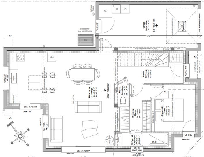
Maison moderne et personnalisable
Ce projet comprend :
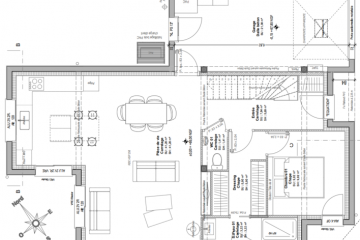
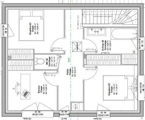
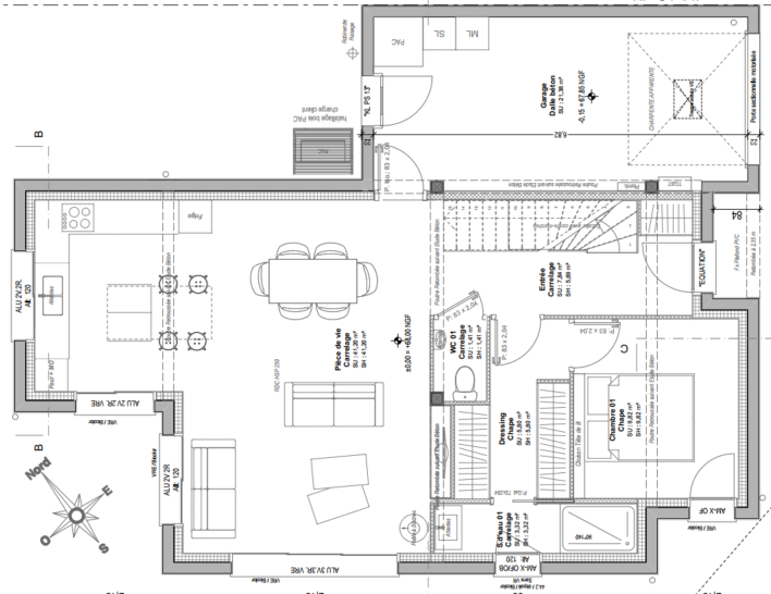
✅ 4 chambres, dont une suite parentale au rez-de-chaussée
✅ Une pièce de vie spacieuse de plus de 45 m², baignée de lumière
✅ Un garage intégré
✅ Des prestations de qualité et une conception sur mesure adaptée à vos envies
Un projet entièrement personnalisable : nos équipes sont à votre écoute pour concevoir la maison qui vous correspond parfaitement !
Un cadre de vie privilégié
Situé au cœur de Melesse, ce terrain vous offre un accès facile aux commerces, écoles et transports, tout en garantissant un environnement calme et agréable.
Informations sur demande
Contactez-nous dès maintenant pour plus de renseignements et étudier ensemble votre projet !
Maisons Création – Réalisons ensemble votre maison idéale !
Informations complémentaires
| Chambre(s) : 4 | Salle(s) de bain : 2 | Surface habitable : 114 m² |
| Surface terrain : 381 m² | Surface annexe : 46 m² | Garage(s) : 1 |
| Prix : 400 000 € |
Géolocalisation du bien
*Terrain proposé et vendu par notre partenaire foncier selon disponibilité et autorisation de publicité, prix du terrain hors frais de notaire et d’hypothèque.
Prix maison : hors papiers peints, peintures, revêtements de sol dans les chambres, cuisines, meubles vasques, et faïences (modifiable sans préavis, prix variables suivant les prestations souhaitées) hors frais d’hypothèque.





