MAISONS CRÉATION vous propose un projet de construction situé à Melesse (35), hors lotissement, en plein centre-ville, dans un environnement à la fois calme et proche de toutes les commodités.
Le projet est implanté sur un terrain de 381 m², exposé SUD-OUEST, offrant un ensoleillement optimal tout au long de la journée.
Maison moderne – 4 chambres – Garage – Projet personnalisable
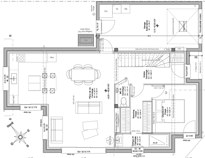
Cet exemple de maison contemporaine se compose :
Au rez-de-chaussée :
- Une entrée
- Une pièce de vie spacieuse de plus de 45 m², baignée de lumière
- Une cuisine ouverte
- Une suite parentale avec salle d’eau
- Des WC séparés
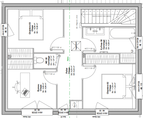
À l’étage :
- 3 chambres
- Une salle de bains
- Des WC séparés
Annexes
- Un garage intégré
Conception intérieure, agencement des espaces, choix des matériaux et des prestations : ce projet est entièrement personnalisable pour s’adapter à vos envies et à votre budget.
Pour plus de renseignements et étudier votre projet, contactez notre équipe commerciale MAISONS CRÉATION : 02 99 05 36 46
Informations complémentaires
| Chambre(s) : 4 | Salle(s) de bain : 2 | Surface habitable : 114 m² |
| Surface terrain : 381 m² | Surface annexe : 46 m² | Garage(s) : 1 |
| Prix : 399 000 € |
Géolocalisation du bien
*Terrain proposé et vendu par notre partenaire foncier selon disponibilité et autorisation de publicité, prix du terrain hors frais de notaire et d’hypothèque.
Prix maison : hors papiers peints, peintures, revêtements de sol dans les chambres, cuisines, meubles vasques, et faïences (modifiable sans préavis, prix variables suivant les prestations souhaitées) hors frais d’hypothèque.




