Saisissez l’opportunité de devenir propriétaire d’un projet terrain + maison idéalement situé dans la ZAC du Feuil, au cœur de la commune recherchée de Melesse.
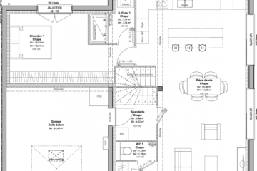
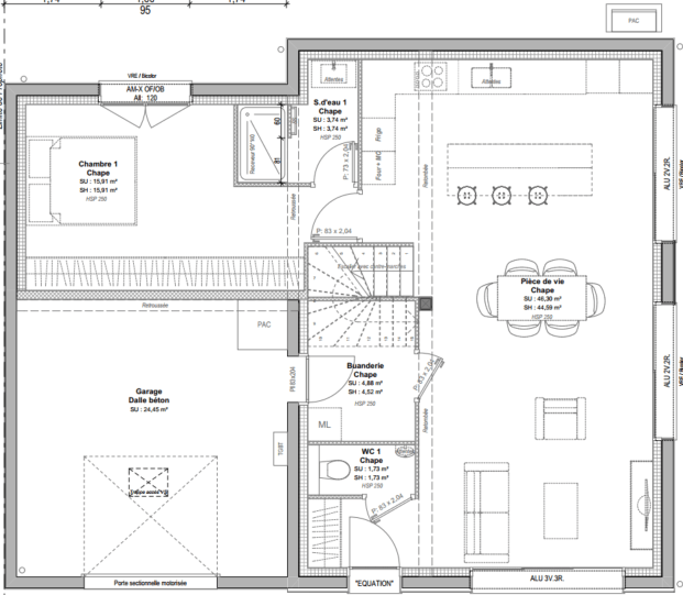
Le projet comprend :
- Un terrain viabilisé de 336 m², bien orienté et proche des commodités.
- Une maison de 121 m² habitables, conforme aux exigences architecturales de la ZAC.
- Un grand garage de 25 m².
- Une vaste pièce de vie de 45 m² avec cuisine ouverte pour un espace convivial et lumineux.
- Une suite parentale au rez-de-chaussée, alliant confort et praticité.
- À l’étage : 3 chambres, ainsi qu’une salle de bains et un WC.
Un projet 100 % personnalisable selon vos envies et vos arbitrages : plans, matériaux, agencements… Tout est adaptable pour créer votre maison idéale.
Profitez d’un environnement de qualité, à proximité des écoles, commerces et axes vers Rennes.
Une belle opportunité à ne pas manquer !
Contactez-nous pour plus d’informations ou pour étudier votre projet.
Informations complémentaires
| Chambre(s) : 4 | Salle(s) de bain : 3 | Surface habitable : 121 m² |
| Surface terrain : 336 m² | Surface annexe : 45 m² | Garage(s) : 1 |
| Prix : 332 500 € |
Géolocalisation du bien
*Terrain proposé et vendu par notre partenaire foncier selon disponibilité et autorisation de publicité, prix du terrain hors frais de notaire et d’hypothèque.
Prix maison : hors papiers peints, peintures, revêtements de sol dans les chambres, cuisines, meubles vasques, et faïences (modifiable sans préavis, prix variables suivant les prestations souhaitées) hors frais d’hypothèque.





