A découvrir à Louvigné-de-Bais !
Située à proximité de de Vitré et de l'axe Rennes-Paris, cette maison contemporaine bénéficie d'une belle luminosité et d'un jardin et 470m² orienté Sud-Est.
Près des commodités et services elle se compose de 5 pièces répartie sur 109m².
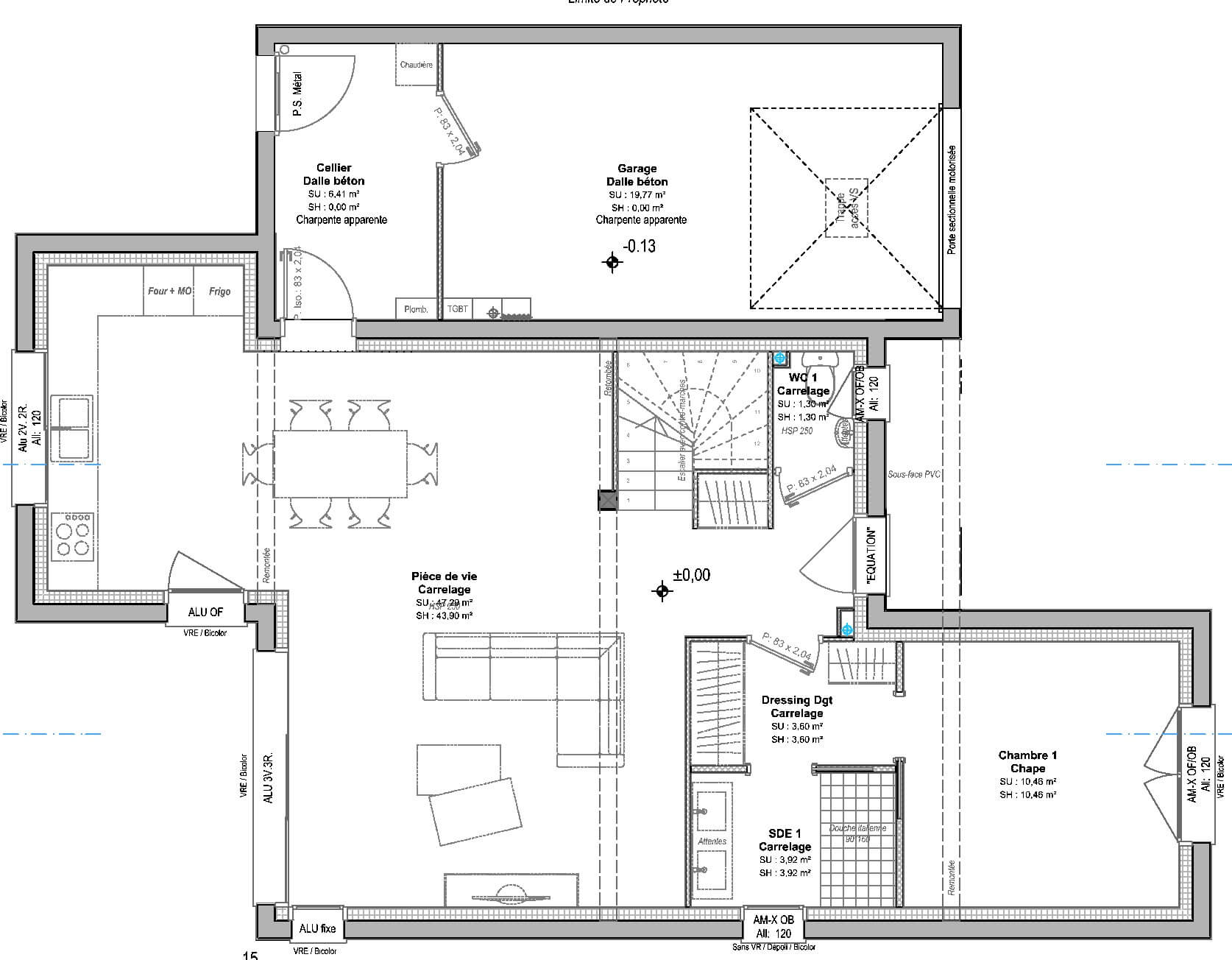
Cette maison comprend au rez-de-chaussée, une entrée, une cuisine ouverte, une buanderie, des WC séparés, un Salon / Séjour de 44m², une chambre parentale, avec une salle d'eau, avec dressing,
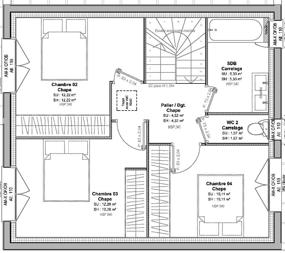
A l'étage, vous pourrez profiter, de WC séparés, d'une salle de bains, de 3 chambres, avec placard.
Cette maison dispose également d'un garage attenant.
Votre projet Maison + Terrain à partir de 248000€ (Hors frais)
Informations complémentaires
| Chambre(s) : 4 | Salle(s) de bain : 2 | Surface habitable : 100 m² |
| Surface terrain : 470 m² | Surface annexe : 44 m² | Garage(s) : 1 |
| Prix : 248 000 € |
Géolocalisation du bien
*Terrain proposé et vendu par notre partenaire foncier selon disponibilité et autorisation de publicité, prix du terrain hors frais de notaire et d’hypothèque.
Prix maison : hors papiers peints, peintures, revêtements de sol dans les chambres, cuisines, meubles vasques, et faïences (modifiable sans préavis, prix variables suivant les prestations souhaitées) hors frais d’hypothèque.






