Dernières opportunités ! Terrain viabilisé !
Sur la charmante commune des Champs-Géraux, à seulement 10 minutes de Dinan et de l'ensemble de ses commerces, services de proximité et écoles et à seulement 7 minutes de la voie express reliant Saint-Malo à Rennes.
Maisons Création vous propose un projet de construction la possibilité de personnaliser un projet sur un terrain de 457 m² orienté sud/ouest.
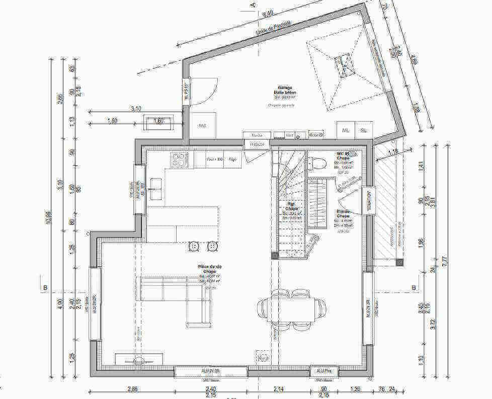
Cet exemple de maison, d'une superficie de 100 m², est répartie sur deux niveaux.
Le rez-de-chaussée se compose d'une entrée avec placard et un WC discret, d'un séjour/cuisine de 47 m² ouvert sur l'extérieur grâce aux baies vitrées qui laissent entrer la lumière. La cuisine donne accès à un garage de 22 m².
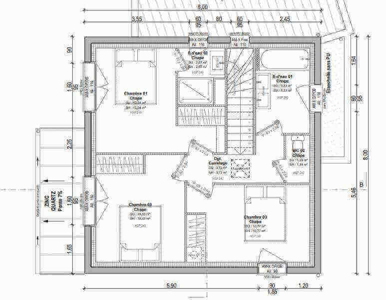
À l'étage, le palier dessert deux chambres de 11 m² avec placard, une suite parentale avec dressing et salle d'eau, une salle de bain et un WC.
N'hésitez pas à nous contacter pour plus de renseignements.
Chez Maisons Creation, nous personnalisons entièrement tous nos projets pour répondre à vos attentes en termes de conception et de prestation
*Terrain proposé et vendu par notre partenaire foncier selon disponibilité et autorisation de publicité, prix du terrain hors frais de notaire et d’hypothèque.
Prix maison : hors papiers peints, peintures, revêtements de sol dans les chambres, cuisines, meubles vasques, et faïences (modifiable sans préavis, prix variables suivant les prestations souhaitées) hors frais d’hypothèque.
Informations complémentaires
| Chambre(s) : 4 | Salle(s) de bain : 1 | Surface habitable : 100 m² |
| Surface terrain : 488 m² | Surface annexe : 46 m² | Garage(s) : 1 |
| Prix : 253 000 € |
Géolocalisation du bien
*Terrain proposé et vendu par notre partenaire foncier selon disponibilité et autorisation de publicité, prix du terrain hors frais de notaire et d’hypothèque.
Prix maison : hors papiers peints, peintures, revêtements de sol dans les chambres, cuisines, meubles vasques, et faïences (modifiable sans préavis, prix variables suivant les prestations souhaitées) hors frais d’hypothèque.





