MAISONS CRÉATION vous propose un projet de construction RE2020 situé au Vivier-sur-Mer, dans un cadre paisible et verdoyant, à proximité immédiate des plages, du bourg et de ses commerces.
Le projet est implanté sur un terrain de 368 m² exposé plein SUD, avec une entrée NORD, offrant une excellente luminosité et un cadre de vie privilégié en bord de mer.
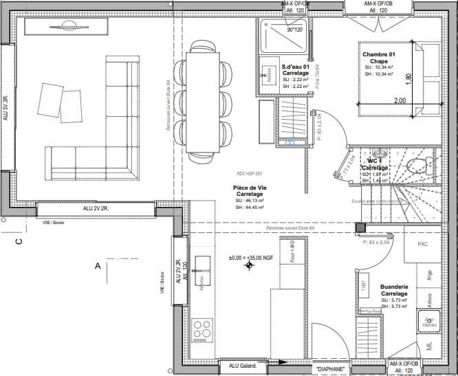
Cet exemple de maison RE2020 développe 109 m² habitables et se compose :
Au rez-de-chaussée :
- Un bel espace de vie très lumineux
- Une suite parentale
- Une buanderie
À l’étage :
- 3 chambres
- Une organisation fonctionnelle pensée pour le confort familial
Un projet personnalisable
Projet incluant le prix du terrain, les garanties et assurances (hors frais annexes liés au terrain et aux finitions de la maison).
Pour plus de renseignements, contactez notre équipe commerciale MAISONS CRÉATION : 02 99 05 36 46
Informations complémentaires
| Chambre(s) : 4 | Salle(s) de bain : 2 | Surface habitable : 109 m² |
| Surface terrain : 368 m² | Surface annexe : 46 m² | Garage(s) : 0 |
| Prix : 280 000 € |
Géolocalisation du bien
*Terrain proposé et vendu par notre partenaire foncier selon disponibilité et autorisation de publicité, prix du terrain hors frais de notaire et d’hypothèque.
Prix maison : hors papiers peints, peintures, revêtements de sol dans les chambres, cuisines, meubles vasques, et faïences (modifiable sans préavis, prix variables suivant les prestations souhaitées) hors frais d’hypothèque.






