MAISONS CRÉATION DINAN vous propose un projet de construction personnalisable RE2020 situé au Minihic-sur-Rance, dans un cadre paisible et verdoyant, à proximité immédiate de la Rance.
Le projet est implanté sur un terrain de 418 m², en plein cœur du bourg, à quelques mètres seulement de toutes les commodités (poste, supérette, bar, gîtes, mairie, etc.).
Maison RE2020 – 115 m² – 4 chambres – Garage
Cet exemple de maison à étage de 115 m² habitables se compose :
Au rez-de-chaussée :
- Un espace de vie très lumineux
- Une suite parentale avec dressing
- Un garage
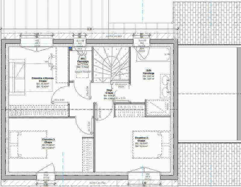
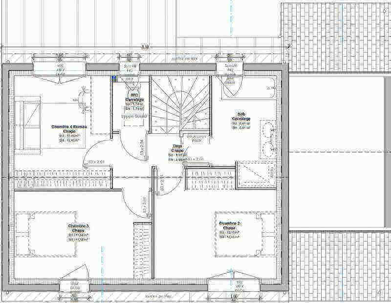
À l’étage :
- 3 chambres
- Une salle de bains
Ce projet est entièrement personnalisable, tant dans la conception intérieure et architecturale que dans le choix du niveau de prestations souhaité.
Pour de plus amples renseignements, contactez notre équipe commerciale MAISONS CRÉATION : 02 99 05 36 46
Informations complémentaires
| Chambre(s) : 4 | Salle(s) de bain : 2 | Surface habitable : 115 m² |
| Surface terrain : 418 m² | Surface annexe : 45 m² | Garage(s) : 1 |
| Prix : 365 000 € |
Géolocalisation du bien
*Terrain proposé et vendu par notre partenaire foncier selon disponibilité et autorisation de publicité, prix du terrain hors frais de notaire et d’hypothèque.
Prix maison : hors papiers peints, peintures, revêtements de sol dans les chambres, cuisines, meubles vasques, et faïences (modifiable sans préavis, prix variables suivant les prestations souhaitées) hors frais d’hypothèque.





