Situé dans un cadre paisible et verdoyant à proximité de la Rance, terrain de 418 m² à construire en plein cœur du bourg du Minihic sur Rance à seulement quelques mètres de toutes ses commodités, telles que la Poste, une supérette, un bar, des gîtes, la mairie, etc.
Nous vous proposons une maison RE2020 à étage d'une superficie de 115 m², disposant au rez-de-chaussée d'un espace de vie très lumineux, d'une suite parentale avec dressing et d'un garage.
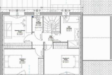
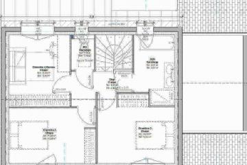
À l'étage, vous trouverez trois belles chambres et une salle de bains.
Chez Maisons Création, nous personnalisons intégralement tous nos projets, en ce qui concerne la conception intérieure et architecturale, ainsi que le niveau de prestations souhaité.
*Terrain proposé et vendu par notre partenaire foncier selon disponibilité et autorisation de publicité, prix du terrain hors frais de notaire et d’hypothèque.
Prix maison : hors papiers peints, peintures, revêtements de sol dans les chambres, cuisines, meubles vasques, et faïences (modifiable sans préavis, prix variables suivant les prestations souhaitées) hors frais d’hypothèque.
Informations complémentaires
| Chambre(s) : 4 | Salle(s) de bain : 2 | Surface habitable : 115 m² |
| Surface terrain : 418 m² | Surface annexe : 45 m² | Garage(s) : 1 |
| Prix : 365 000 € |
Géolocalisation du bien
*Terrain proposé et vendu par notre partenaire foncier selon disponibilité et autorisation de publicité, prix du terrain hors frais de notaire et d’hypothèque.
Prix maison : hors papiers peints, peintures, revêtements de sol dans les chambres, cuisines, meubles vasques, et faïences (modifiable sans préavis, prix variables suivant les prestations souhaitées) hors frais d’hypothèque.





