Découvrez cette maison située à Lassy, proche de l'axe Rennes-Redon.
Elle bénéficie d'une belle luminosité grâce à son jardin de 505m² orienté Sud-Ouest. Elle se compose de 5 pièces réparties sur 100m², situées dans le bourg proche des commodités et services.
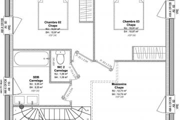
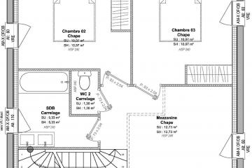
Au rez-de-chaussée se trouvent une entrée, une cuisine ouverte, des WC séparés, un salon/séjour de 44m², une chambre parentale avec salle d'eau. A l'étage, vous pourrez profiter de WC séparés, d'une salle de bains, de 3 chambres avec placard. La maison dispose également d'un garage attenant.
Ce projet Maison + Terrain est disponible à partir de 276350€ (Hors frais).
Informations complémentaires
| Chambre(s) : 4 | Salle(s) de bain : 2 | Surface habitable : 100 m² |
| Surface terrain : 505 m² | Surface annexe : 44 m² | Garage(s) : 1 |
| Prix : 276 350 € |
Géolocalisation du bien
*Terrain proposé et vendu par notre partenaire foncier selon disponibilité et autorisation de publicité, prix du terrain hors frais de notaire et d’hypothèque.
Prix maison : hors papiers peints, peintures, revêtements de sol dans les chambres, cuisines, meubles vasques, et faïences (modifiable sans préavis, prix variables suivant les prestations souhaitées) hors frais d’hypothèque.







