MAISONS CRÉATION vous propose un projet de construction contemporain idéalement situé en plein bourg de Lassy, au cœur d’une commune recherchée.
Le projet est implanté sur un magnifique terrain de 814 m², offrant un cadre de vie paisible, une belle luminosité et un environnement privilégié, tout en restant proche des commodités, des écoles et des axes principaux.
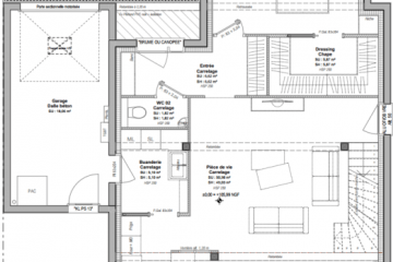
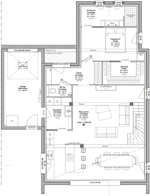
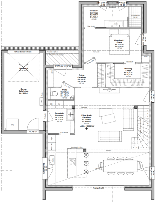
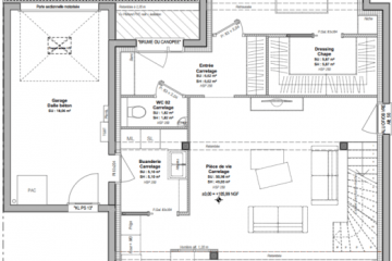
Maison contemporaine – env. 120 m² – 4 chambres – Garage
Cet exemple de maison moderne, développant environ 120 m² habitables, se compose :
Au rez-de-chaussée :
- Une vaste pièce de vie de 50 m², baignée de lumière
- Un vide sur séjour, offrant une belle hauteur sous plafond
- Une vue dégagée sur le jardin et les toits du village
- Une suite parentale avec salle d’eau privative et dressing
- Une entrée fonctionnelle
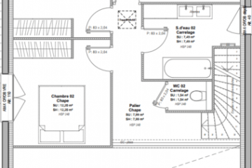
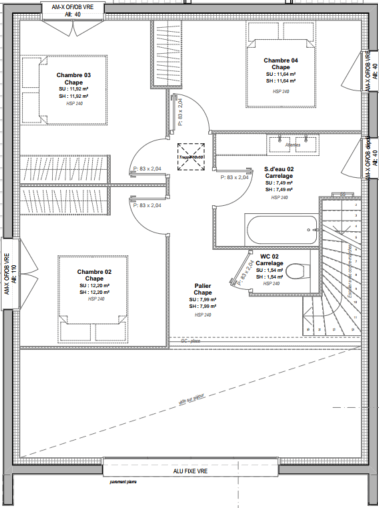
À l’étage :
- 3 chambres spacieuses
- Une salle de bains familiale
- Un espace bureau ou coin détente, modulable selon vos envies
Annexes
- Un garage
- Un espace technique
Architecture contemporaine, volumes généreux, luminosité et confort : ce projet est personnalisable afin de répondre pleinement à vos attentes et à votre mode de vie.
Pour plus de renseignements et étudier votre projet, contactez notre équipe commerciale MAISONS CRÉATION : 02 99 05 36 46
Informations complémentaires
| Chambre(s) : 4 | Salle(s) de bain : 2 | Surface habitable : 120 m² |
| Surface terrain : 814 m² | Surface annexe : 50 m² | Garage(s) : 1 |
| Prix : 320 000 € |
Géolocalisation du bien
*Terrain proposé et vendu par notre partenaire foncier selon disponibilité et autorisation de publicité, prix du terrain hors frais de notaire et d’hypothèque.
Prix maison : hors papiers peints, peintures, revêtements de sol dans les chambres, cuisines, meubles vasques, et faïences (modifiable sans préavis, prix variables suivant les prestations souhaitées) hors frais d’hypothèque.





