Découvrez ce projet de maison moderne idéalement implanté en plein cœur du bourg de LASSY, sur un terrain de 814 m² offrant une belle vue sur le jardin sans aucun vis-à-vis.
Cette maison neuve de 101 m² se distingue par ses volumes bien pensés et sa belle luminosité :
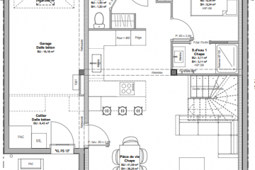
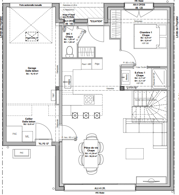
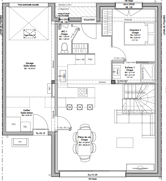
Une pièce de vie de 40 m², conviviale et lumineuse, ouverte sur le jardin pour profiter pleinement du cadre paisible du bourg.
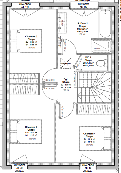
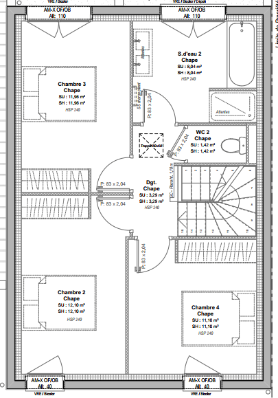
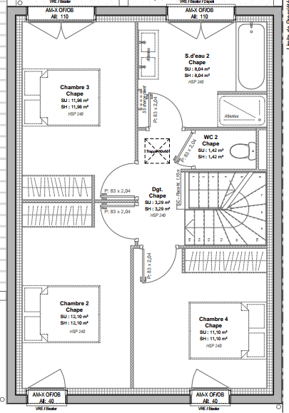
Quatre chambres, dont une suite parentale au rez-de-chaussée avec salle d’eau privative.
Une salle de bains familiale à l’étage et un espace nuit idéal pour accueillir toute la famille.
Garage et cellier complètent ce bel ensemble.
Ce projet offre un équilibre parfait entre vie de village et confort moderne : commerces, école et services accessibles à pied, dans un environnement calme et verdoyant.
Un emplacement rare, une architecture élégante, un cadre de vie privilégié : votre maison à LASSY vous attend !
Informations complémentaires
| Chambre(s) : 4 | Salle(s) de bain : 2 | Surface habitable : 101 m² |
| Surface terrain : 814 m² | Surface annexe : 40 m² | Garage(s) : 1 |
| Prix : 285 000 € |
Géolocalisation du bien
*Terrain proposé et vendu par notre partenaire foncier selon disponibilité et autorisation de publicité, prix du terrain hors frais de notaire et d’hypothèque.
Prix maison : hors papiers peints, peintures, revêtements de sol dans les chambres, cuisines, meubles vasques, et faïences (modifiable sans préavis, prix variables suivant les prestations souhaitées) hors frais d’hypothèque.





