MAISONS CRÉATION vous propose un projet de construction moderne idéalement implanté en plein cœur du bourg de Lassy, dans un environnement calme, verdoyant et sans vis-à-vis.
Le projet est implanté sur un terrain de 814 m², offrant une belle vue sur le jardin et un cadre de vie privilégié, avec les commerces, l’école et les services accessibles à pied.
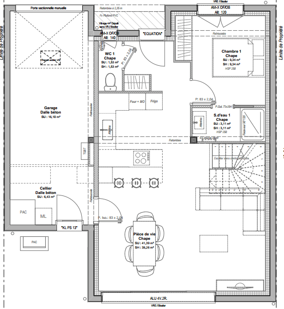
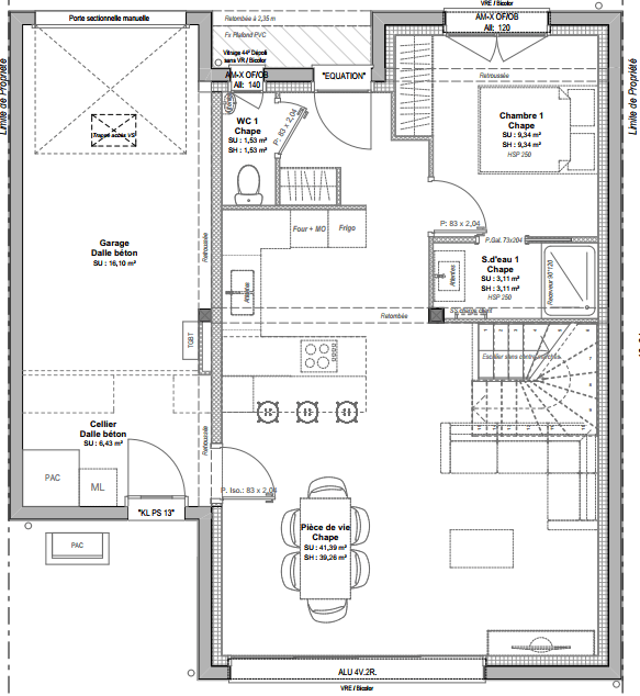
Maison moderne – 101 m² – 4 chambres – Garage & cellier
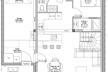
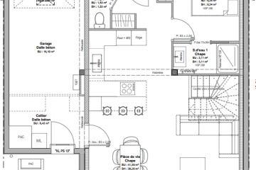
Cet exemple de maison neuve, développant 101 m² habitables, se compose :
Au rez-de-chaussée :
- Une pièce de vie de 40 m², conviviale et lumineuse
- Une cuisine ouverte donnant sur le jardin
- Une suite parentale avec salle d’eau privative
- Une entrée fonctionnelle
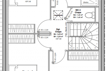
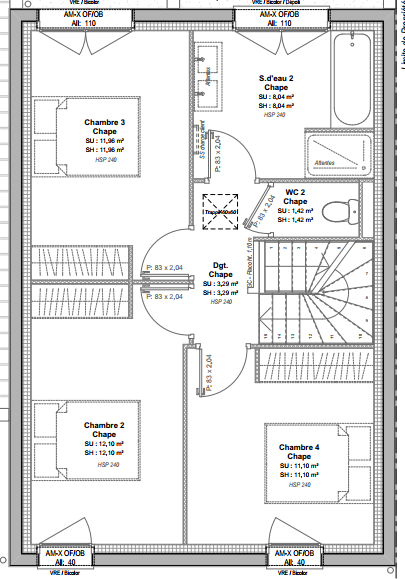
À l’étage :
- 3 chambres
- Une salle de bains familiale
- Un espace nuit confortable pour toute la famille
Annexes
- Un garage
- Un cellier
Pour plus de renseignements et étudier votre projet, contactez notre équipe commerciale MAISONS CRÉATION : 02 99 05 36 46
Informations complémentaires
| Chambre(s) : 4 | Salle(s) de bain : 2 | Surface habitable : 101 m² |
| Surface terrain : 814 m² | Surface annexe : 40 m² | Garage(s) : 1 |
| Prix : 270 000 € |
Géolocalisation du bien
*Terrain proposé et vendu par notre partenaire foncier selon disponibilité et autorisation de publicité, prix du terrain hors frais de notaire et d’hypothèque.
Prix maison : hors papiers peints, peintures, revêtements de sol dans les chambres, cuisines, meubles vasques, et faïences (modifiable sans préavis, prix variables suivant les prestations souhaitées) hors frais d’hypothèque.





