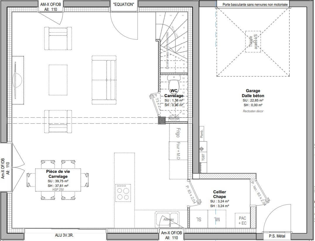
Sur terrain de 272 m² à proxmité du bord de mer, dans un cadre paisible et verdoyant, à proximité du bourg de la Fresnais et de toutes ses commodités, sa gare, nous vous proposons une MAISON RE2020 à étage d'une surface de 85 m² disposant de 3 grandes chambres, une salle de bains, 2 WC indépendants, grand espace de vie.
Avec son grand garage, vous serez séduits par le grand volume de stockage en plus de son espace de stationnement dédié.
Chez Maisons Creation, tous nos projets sont intégralement personnalisés, tant au niveau de la conception intérieure et architecturale du projet, qu'à la définition du niveau de prestations que vous souhaitez.
Projet incluant prix du terrain, garanties et assurances incluses, hors frais annexes liés au terrain et aux finitions de la maison.
Informations complémentaires
| Chambre(s) : 3 | Salle(s) de bain : 1 | Surface habitable : 85 m² |
| Surface terrain : 272 m² | Surface annexe : 45 m² | Garage(s) : 1 |
| Prix : 230 000 € |
Géolocalisation du bien
*Terrain proposé et vendu par notre partenaire foncier selon disponibilité et autorisation de publicité, prix du terrain hors frais de notaire et d’hypothèque.
Prix maison : hors papiers peints, peintures, revêtements de sol dans les chambres, cuisines, meubles vasques, et faïences (modifiable sans préavis, prix variables suivant les prestations souhaitées) hors frais d’hypothèque.





