MAISONS CRÉATION vous propose un projet de construction RE2020, situé sur la commune de La Fresnais, dans un environnement paisible et verdoyant, à proximité immédiate du bourg, de ses commodités et de la gare, tout en restant proche du bord de mer.
Le projet est implanté sur un terrain de 272 m², idéal pour une résidence principale ou secondaire.
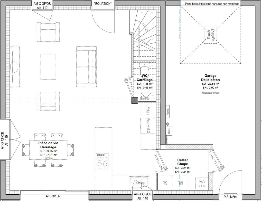
Cet exemple de maison RE2020 développe 85 m² habitables et se compose :
Au rez-de-chaussée :
- Un grand espace de vie lumineux
- Un WC indépendant
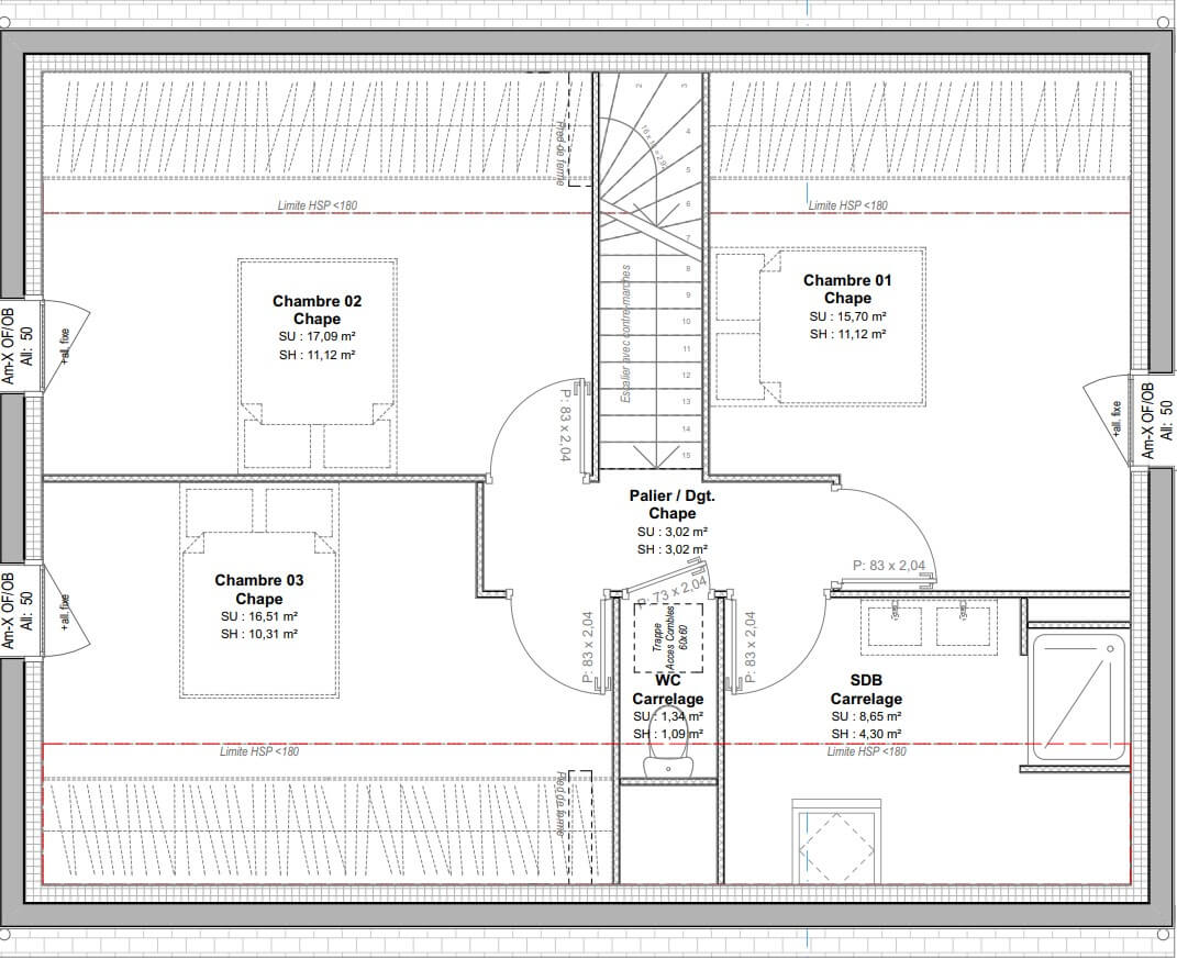
À l’étage :
- 3 grandes chambres
- Une salle de bains
- Un second WC indépendant
Annexes
- Un grand garage, offrant un important volume de stockage en complément de l’espace de stationnement
Projet personnalisable
Pour plus de renseignements, contactez notre équipe commerciale MAISONS CRÉATION : 02 99 05 36 46
Informations complémentaires
| Chambre(s) : 3 | Salle(s) de bain : 1 | Surface habitable : 85 m² |
| Surface terrain : 272 m² | Surface annexe : 45 m² | Garage(s) : 1 |
| Prix : 230 000 € |
Géolocalisation du bien
*Terrain proposé et vendu par notre partenaire foncier selon disponibilité et autorisation de publicité, prix du terrain hors frais de notaire et d’hypothèque.
Prix maison : hors papiers peints, peintures, revêtements de sol dans les chambres, cuisines, meubles vasques, et faïences (modifiable sans préavis, prix variables suivant les prestations souhaitées) hors frais d’hypothèque.




