MAISONS CRÉATION vous propose un projet de construction sur mesure situé à La Chapelle-Thouarault, dans un quartier résidentiel de qualité, au sein de la ZAC de la Niche aux Oiseaux.
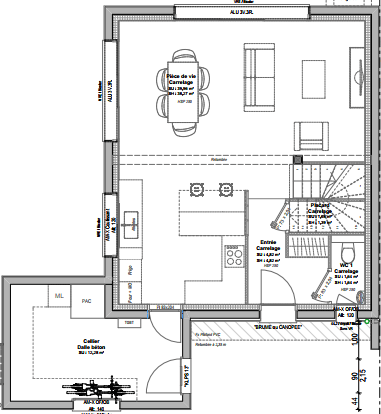
Cet exemple de maison sur deux niveaux, d’une surface habitable de 89 m², se compose :
Au rez-de-chaussée :
- Une entrée avec placard
- Une pièce de vie de 38 m² avec cuisine ouverte, donnant accès à une terrasse
- Un cellier / arrière-cuisine de 12 m²
- Des WC séparés
À l’étage :
- 3 chambres avec placards
- Une salle de bain
- Un WC séparé
Informations complémentaires
| Chambre(s) : 3 | Salle(s) de bain : 1 | Surface habitable : 89 m² |
| Surface terrain : 223 m² | Surface annexe : 38 m² | Garage(s) : 0 |
| Prix : 249 023 € |
Géolocalisation du bien
*Terrain proposé et vendu par notre partenaire foncier selon disponibilité et autorisation de publicité, prix du terrain hors frais de notaire et d’hypothèque.
Prix maison : hors papiers peints, peintures, revêtements de sol dans les chambres, cuisines, meubles vasques, et faïences (modifiable sans préavis, prix variables suivant les prestations souhaitées) hors frais d’hypothèque.




