Dans un environnement résidentiel privilégié de La Chapelle-des-Fougeretz, découvrez ce projet de construction alliant élégance architecturale, confort moderne et prestations de qualité, implanté sur un terrain de 357 m² exposé Ouest.
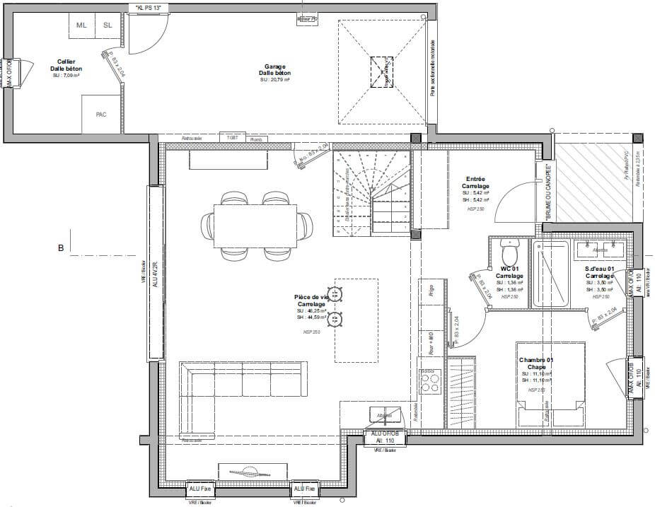
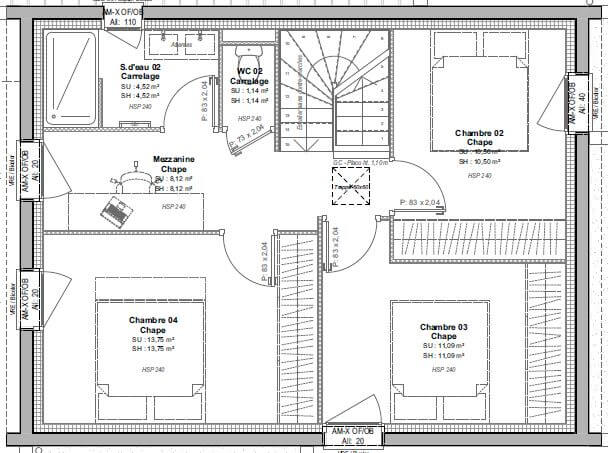
Cette maison contemporaine développera 115 m² habitables, pensés pour un art de vivre raffiné et fonctionnel :
- 4 chambres, dont une suite parentale avec salle d’eau privative
- Une salle de bains familiale aux volumes généreux
- Une salle d’eau supplémentaire
- Deux WC indépendants
- Un garage attenant
Les volumes ont été soigneusement étudiés afin d’offrir des espaces de vie lumineux, harmonieux et confortables, parfaitement adaptés à la vie de famille et à la réception.
Projet entièrement personnalisable : conception intérieure, agencement des espaces, choix des matériaux et des finitions… imaginez la maison qui vous ressemble, selon vos envies et votre budget.
Environnement calme et résidentiel, à proximité des commodités, écoles et axes de communication.
Informations complémentaires
| Chambre(s) : 4 | Salle(s) de bain : 2 | Surface habitable : 115 m² |
| Surface terrain : 357 m² | Surface annexe : 45 m² | Garage(s) : 1 |
| Prix : 345 000 € |
Géolocalisation du bien
*Terrain proposé et vendu par notre partenaire foncier selon disponibilité et autorisation de publicité, prix du terrain hors frais de notaire et d’hypothèque.
Prix maison : hors papiers peints, peintures, revêtements de sol dans les chambres, cuisines, meubles vasques, et faïences (modifiable sans préavis, prix variables suivant les prestations souhaitées) hors frais d’hypothèque.




