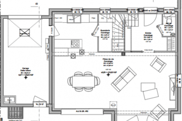
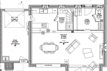
Idéalement situé à LA CHAPELLE-CHAUSSEE, proche de SAINT-SYMPHORIEN et sur l'axe Rennes/Saint-Malo, dans une commune disposant de tous les commerces de proximité, nous vous proposons, sur un terrain de 531m², une maison de 115m² se composant comme suit :
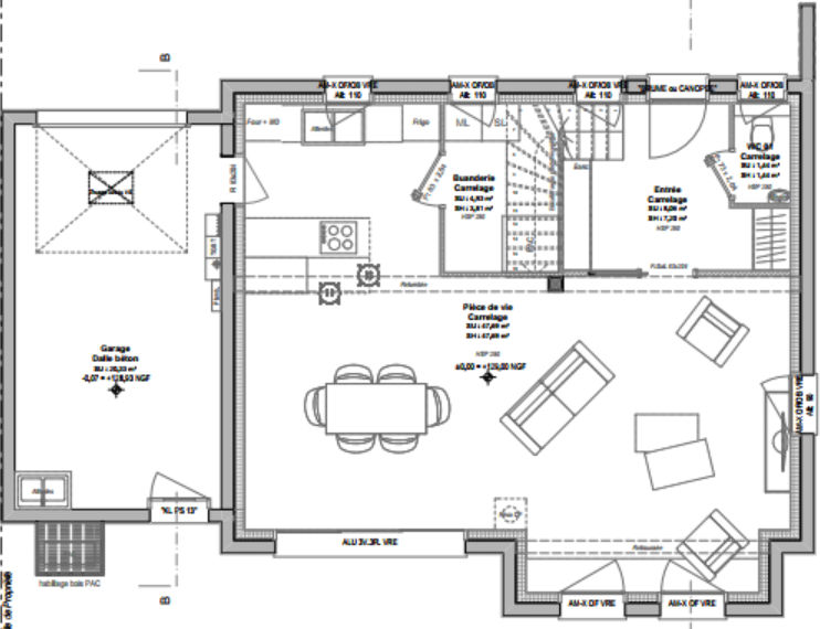
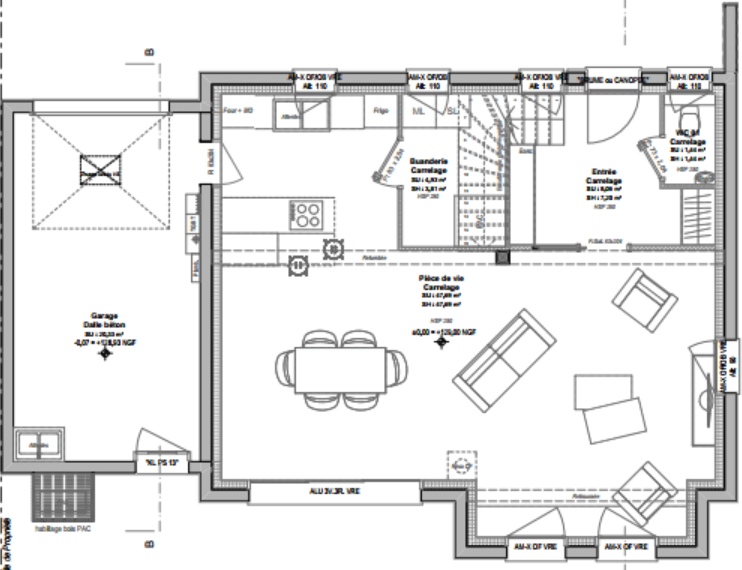
* au rez-de-chaussée : une entrée séparée, une pièce de vie d'environ 50m², une buanderie et des WC séparés,
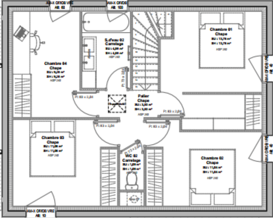
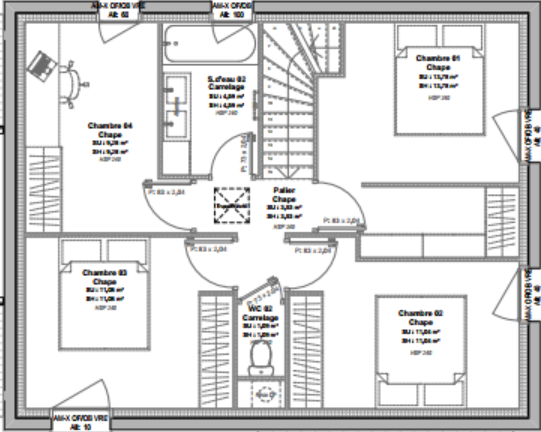
* à l'étage : 4 chambres, une salle de bains commune et des WC séparés.
Garage inclus.
Projet entièrement personnalisable.
Informations complémentaires
| Chambre(s) : 4 | Salle(s) de bain : 1 | Surface habitable : 115 m² |
| Surface terrain : 531 m² | Surface annexe : 48 m² | Garage(s) : 1 |
| Prix : 297 000 € |
Géolocalisation du bien
*Terrain proposé et vendu par notre partenaire foncier selon disponibilité et autorisation de publicité, prix du terrain hors frais de notaire et d’hypothèque.
Prix maison : hors papiers peints, peintures, revêtements de sol dans les chambres, cuisines, meubles vasques, et faïences (modifiable sans préavis, prix variables suivant les prestations souhaitées) hors frais d’hypothèque.





