Sur la charmante commune de La Chapelle Aux Fitzméens, à proximité immédiate de Combourg et de tous ses services, vous serez également à proximité des communes de Tinténiac et St Domineuc, de leurs services et de la 4 voies Rennes-St Malo.
Maisons Création vous propose un projet de construction personnalisée sur un terrain de 486 m² orienté sud/ouest.
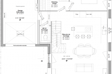
Cette maison d'une superficie de 106 m², est répartie sur deux niveaux.
Le rez-de-chaussée se compose d'une entrée directe sur un une pièce de vie de 46 m² ouvert sur l'extérieur grâce aux baies vitrées qui laissent entrer la lumière. La cuisine donne accès à un garage de près de 22 m².
À l'étage, le palier dessert deux chambres de 11 m² avec placard, une chambre de 10 m2, une salle de bain et un WC.
N'hésitez pas à nous contacter pour plus de renseignements.
Chez Maisons Creation, nous personnalisons entièrement tous nos projets pour répondre à vos attentes en termes de conception et de prestations.
*Terrain proposé et vendu par notre partenaire foncier selon disponibilité et autorisation de publicité, prix du terrain hors frais de notaire et d’hypothèque.
Prix maison : hors papiers peints, peintures, revêtements de sol dans les chambres, cuisines, meubles vasques, et faïences (modifiable sans préavis, prix variables suivant les prestations souhaitées) hors frais d’hypothèque.
Informations complémentaires
| Chambre(s) : 4 | Salle(s) de bain : 2 | Surface habitable : 106 m² |
| Surface terrain : 486 m² | Surface annexe : 46 m² | Garage(s) : 1 |
| Prix : 278 000 € |
Géolocalisation du bien
*Terrain proposé et vendu par notre partenaire foncier selon disponibilité et autorisation de publicité, prix du terrain hors frais de notaire et d’hypothèque.
Prix maison : hors papiers peints, peintures, revêtements de sol dans les chambres, cuisines, meubles vasques, et faïences (modifiable sans préavis, prix variables suivant les prestations souhaitées) hors frais d’hypothèque.





