A découvrir à Janzé !
Située à proximité de des transports et toutes commodités, cette maison contemporaine bénéficie d'une belle luminosité et d'un jardin et 448m².
Proche du centre, 10 minutes à pied est composée de 5 pièces répartie sur 100m².
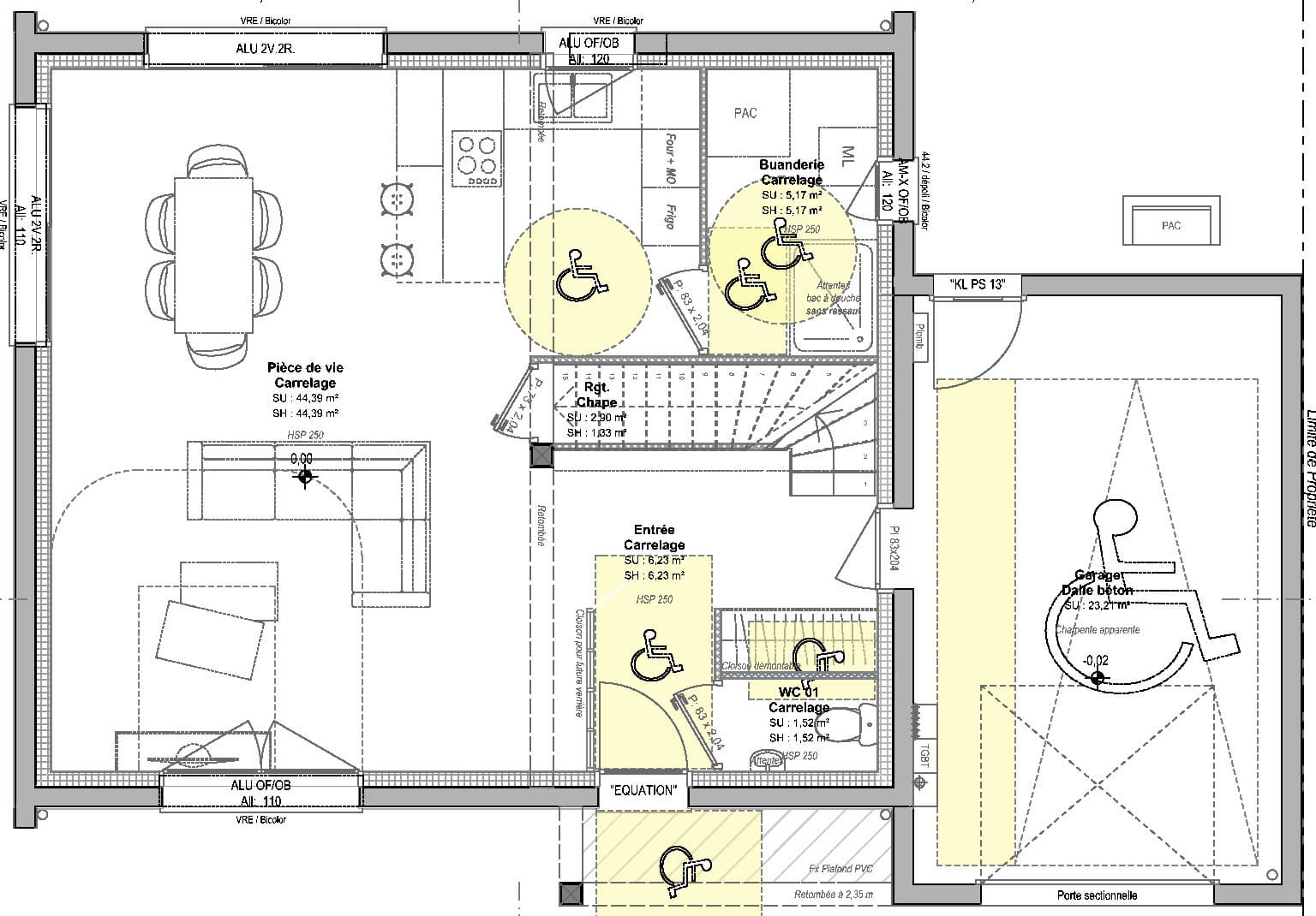
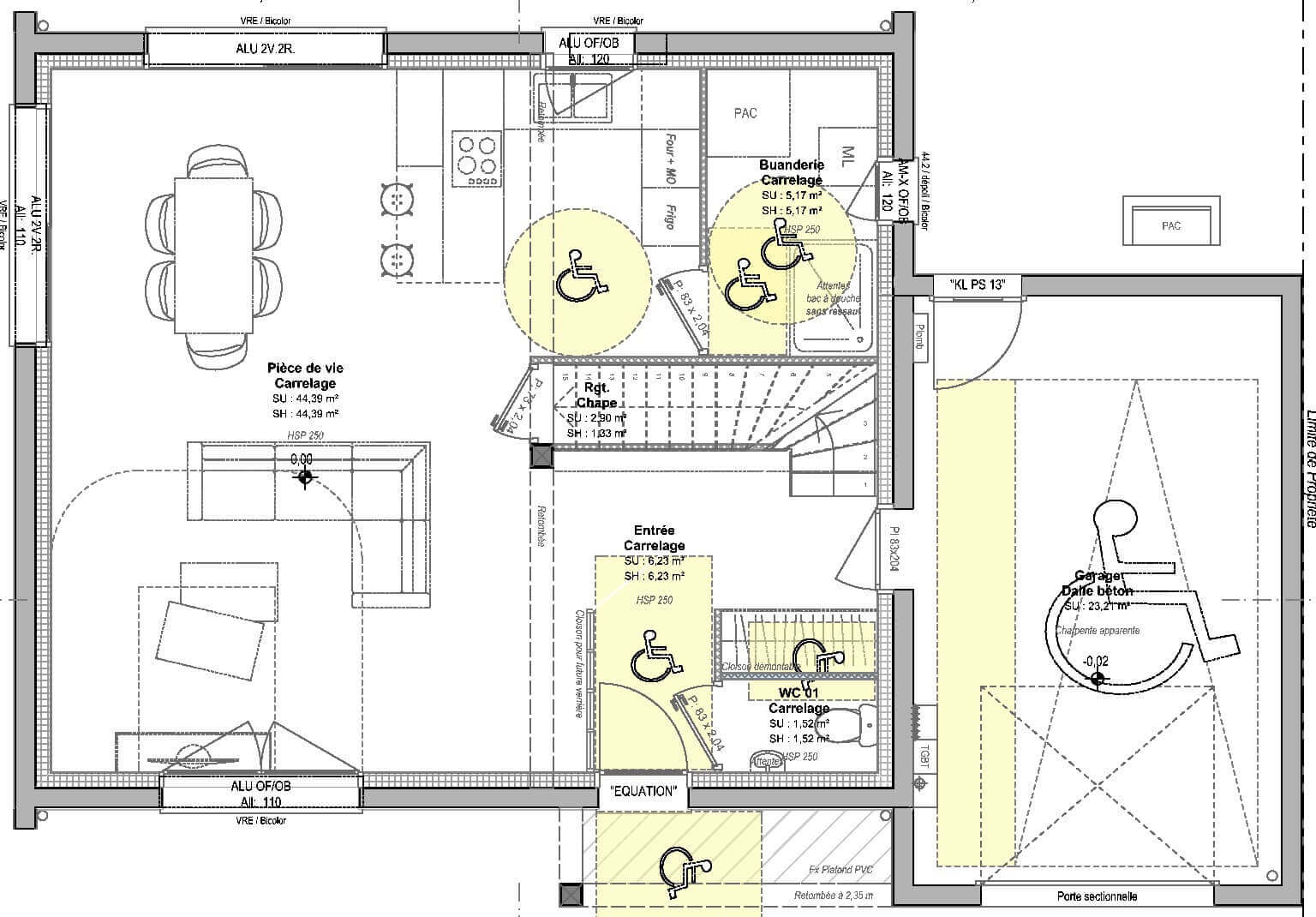
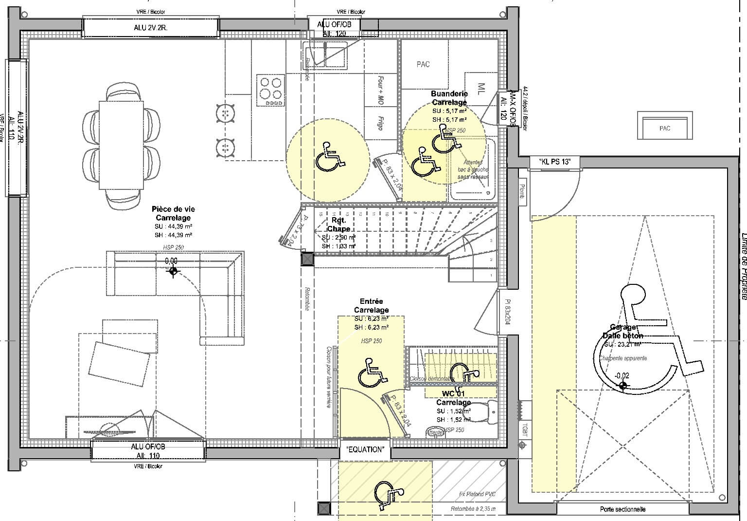
Cette maison comprend au rez-de-chaussée, une entrée, une cuisine ouverte, des WC séparés, un Salon / Séjour de 44m²,
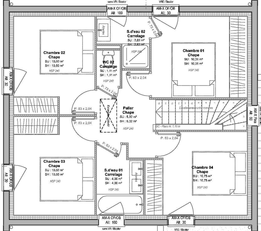
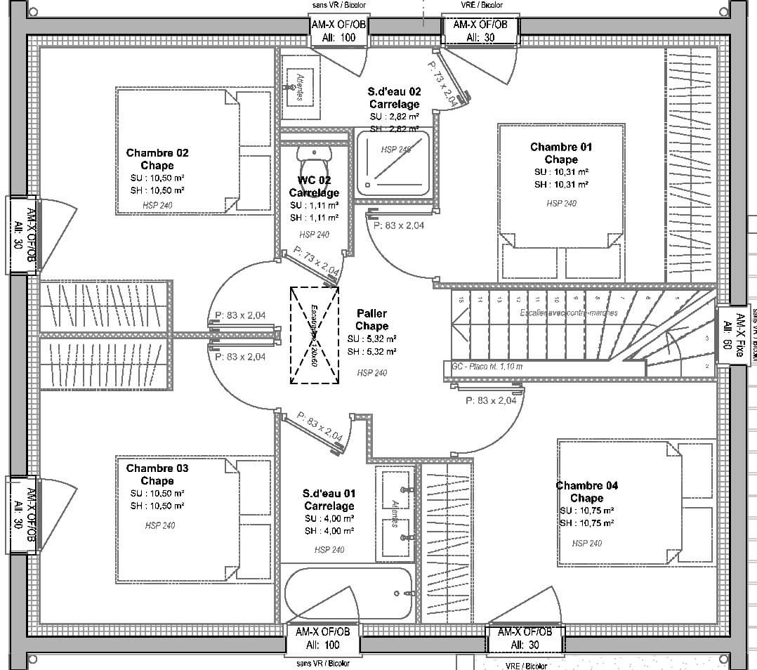
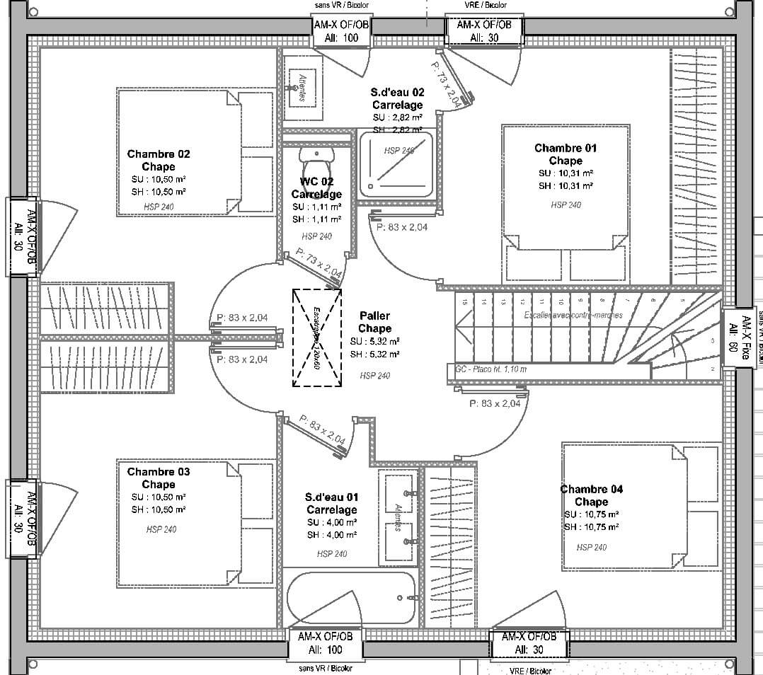
A l'étage, vous pourrez profiter, de WC séparés, d'une chambre parentale, avec une salle d'eau, placard, de 3 chambres avec placards.
Cette maison dispose également d'un garage attenant.
Votre projet Maison + Terrain à partir de 275000€ (Hors frais)
Informations complémentaires
| Chambre(s) : 4 | Salle(s) de bain : 2 | Surface habitable : 100 m² |
| Surface terrain : 448 m² | Surface annexe : 44 m² | Garage(s) : 1 |
| Prix : 275 000 € |
Géolocalisation du bien
*Terrain proposé et vendu par notre partenaire foncier selon disponibilité et autorisation de publicité, prix du terrain hors frais de notaire et d’hypothèque.
Prix maison : hors papiers peints, peintures, revêtements de sol dans les chambres, cuisines, meubles vasques, et faïences (modifiable sans préavis, prix variables suivant les prestations souhaitées) hors frais d’hypothèque.





