PROJET DE CONSTRUCTION RE2020 À HIREL – PROCHE DU LITTORAL
MAISONS CRÉATION vous propose un projet de construction RE2020 entièrement personnalisable, situé sur la commune de Hirel, à proximité immédiate du bourg, de ses commodités et à quelques minutes du bord de mer.
Le projet est implanté sur un terrain de 381 m², dans un environnement paisible et verdoyant, idéal pour une résidence principale ou secondaire.
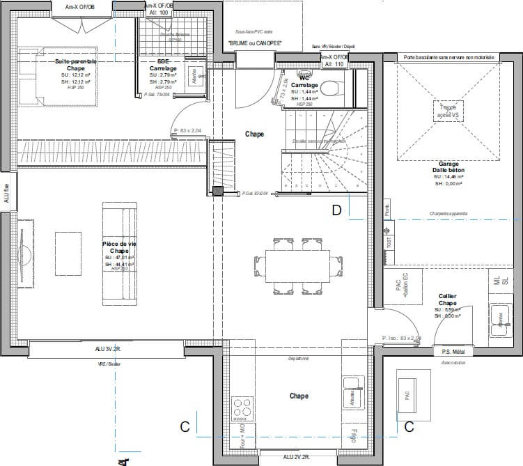
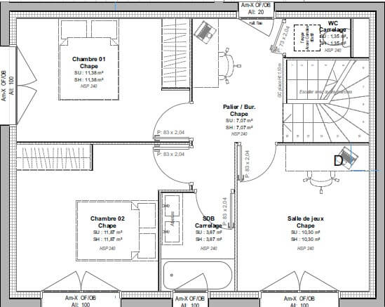
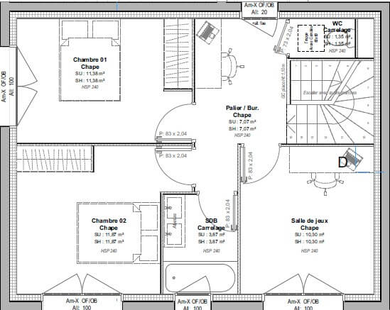
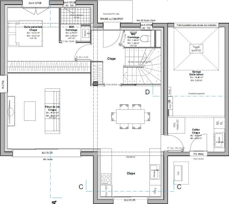
Maison à étage – 103 m² – 4 chambres
Cet exemple de maison développe 103 m² habitables et se compose :
Au rez-de-chaussée :
- Un grand espace de vie lumineux
- Une suite parentale avec salle d’eau
- Un WC indépendant
À l’étage :
- 3 grandes chambres
- Une salle de bains
- Un WC indépendant
Annexes
- Grand garage, offrant un important volume de rangement
Un projet personnalisable
Pour plus de renseignements, contactez notre équipe commerciale MAISONS CRÉATION : 02 99 05 36 46
Informations complémentaires
| Chambre(s) : 4 | Salle(s) de bain : 2 | Surface habitable : 103 m² |
| Surface terrain : 381 m² | Surface annexe : 42 m² | Garage(s) : 1 |
| Prix : 290 000 € |
Géolocalisation du bien
*Terrain proposé et vendu par notre partenaire foncier selon disponibilité et autorisation de publicité, prix du terrain hors frais de notaire et d’hypothèque.
Prix maison : hors papiers peints, peintures, revêtements de sol dans les chambres, cuisines, meubles vasques, et faïences (modifiable sans préavis, prix variables suivant les prestations souhaitées) hors frais d’hypothèque.




