MAISONS CRÉATION vous propose un projet de construction RE2020 situé à Hirel, dans un cadre paisible et verdoyant, à proximité des plages, du bourg et de l’ensemble des commodités et commerces.
Le projet est implanté sur un terrain de 335 m², offrant un cadre de vie agréable entre littoral et vie quotidienne facilitée.
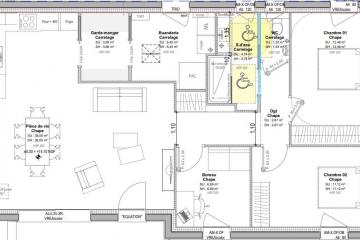
Cet exemple de maison RE2020, conçu dans le respect des normes PMR, développe 87 m² habitables et se compose :
- Un bel espace de vie très lumineux
- 2 chambres
- Un bureau
- Une arrière-cuisine
- Une buanderie
- Une organisation fonctionnelle, pensée pour le confort au quotidien
Un projet personnalisable
Projet incluant le prix du terrain, les garanties et assurances (hors frais annexes liés au terrain et aux finitions de la maison).
Pour plus de renseignements, contactez notre équipe commerciale MAISONS CRÉATION : 02 99 05 36 46
Informations complémentaires
| Chambre(s) : 2 | Salle(s) de bain : 1 | Surface habitable : 87 m² |
| Surface terrain : 335 m² | Surface annexe : 38 m² | Garage(s) : 0 |
| Prix : 244 900 € |
Géolocalisation du bien
*Terrain proposé et vendu par notre partenaire foncier selon disponibilité et autorisation de publicité, prix du terrain hors frais de notaire et d’hypothèque.
Prix maison : hors papiers peints, peintures, revêtements de sol dans les chambres, cuisines, meubles vasques, et faïences (modifiable sans préavis, prix variables suivant les prestations souhaitées) hors frais d’hypothèque.




