Coup de coeur à Hédé-Bazouges !
Située à Hédé-Bazouges, à proximité de Rennes, proche de la 4 voies Rennes/Saint-Malo, cette maison contemporaine en briques, couverture monopente zinc, bénéficie d'une belle luminosité et d'un jardin plat de 343m² orienté Sud.
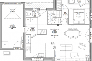
Dans le bourg, à proximité des écoles, près des commodités et services, cette maison est composée de 5 pièces répartie sur 120m².
Elle comprend :
* au rez-de-chaussée : une entrée avec placard, une arrière-cuisine, des WC séparés, une cuisine ouverte, un Salon / Séjour de 45m², une chambre parentale de 14m² avec dressing et salle d'eau,
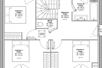
* à l'étage : vous pourrez profiter de 3 chambres, d'une salle de bains et de WC séparés, ainsi que d'un espace ouvert pour un coin jeux enfants.
Cette maison dispose également d'un garage attenant.
Votre projet Maison + Terrain à partir de 320800€ (Hors frais)
NON MANDATÉ POUR LA VENTE DES TERRAINS
Maisons CREATION Rennes n’est pas chargé de réaliser la vente des terrains à bâtir mentionnés dans ces annonces.
Maisons CREATION Rennes agit seulement en qualité de constructeur.
Informations complémentaires
| Chambre(s) : 4 | Salle(s) de bain : 2 | Surface habitable : 120 m² |
| Surface terrain : 343 m² | Surface annexe : 45 m² | Garage(s) : 1 |
| Prix : 298 781 € |
Géolocalisation du bien
*Terrain proposé et vendu par notre partenaire foncier selon disponibilité et autorisation de publicité, prix du terrain hors frais de notaire et d’hypothèque.
Prix maison : hors papiers peints, peintures, revêtements de sol dans les chambres, cuisines, meubles vasques, et faïences (modifiable sans préavis, prix variables suivant les prestations souhaitées) hors frais d’hypothèque.





