MAISONS CRÉATION vous propose un projet de construction à découvrir à Guichen, à proximité immédiate du bourg, sur l’axe menant à Laillé.
Le projet est implanté sur un terrain de 343 m², exposé plein OUEST, situé dans un petit lotissement en impasse, composé de maisons cossues. Il s’agit de la dernière opportunité foncière sur ce secteur recherché.
Maison traditionnelle à étage – 4 chambres – Buanderie
Cet exemple de projet, entièrement ajustable, se compose :
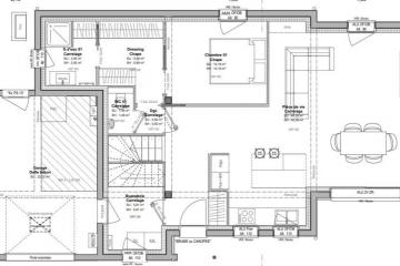
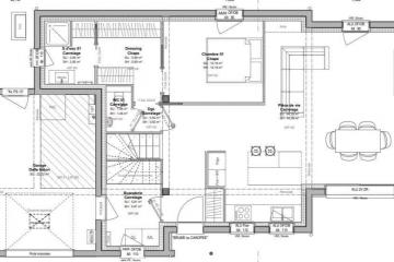
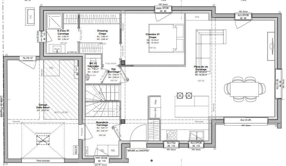
Au rez-de-chaussée :
- Une entrée avec placard
- Une spacieuse et lumineuse pièce de vie
- Une suite parentale
- Une buanderie
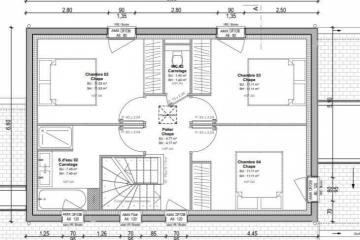
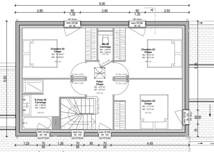
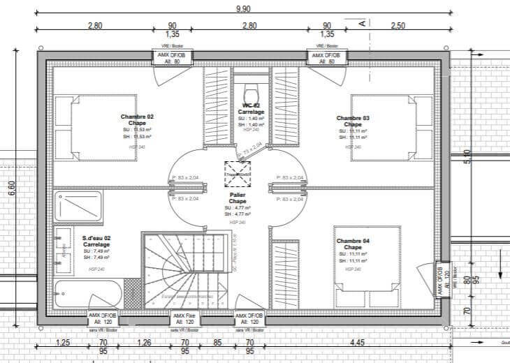
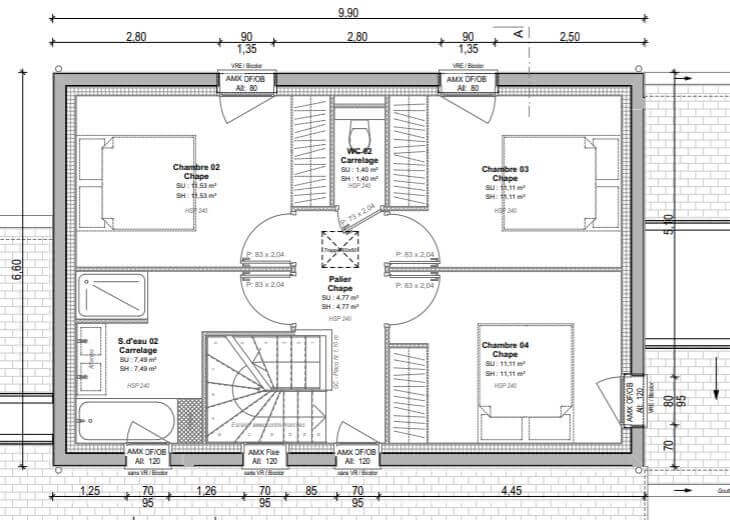
À l’étage :
- Un palier fonctionnel
- 3 chambres
- Une salle de bains
- Un WC indépendant
Pour plus de renseignements, contactez notre équipe commerciale MAISONS CRÉATION : 02 99 05 36 46
Informations complémentaires
| Chambre(s) : 4 | Salle(s) de bain : 2 | Surface habitable : 100 m² |
| Surface terrain : 343 m² | Surface annexe : 45 m² | Garage(s) : 1 |
| Prix : 285 540 € |
Géolocalisation du bien
*Terrain proposé et vendu par notre partenaire foncier selon disponibilité et autorisation de publicité, prix du terrain hors frais de notaire et d’hypothèque.
Prix maison : hors papiers peints, peintures, revêtements de sol dans les chambres, cuisines, meubles vasques, et faïences (modifiable sans préavis, prix variables suivant les prestations souhaitées) hors frais d’hypothèque.




