Découvrez cette exclusivité MAISONS CREATION à Guichen.
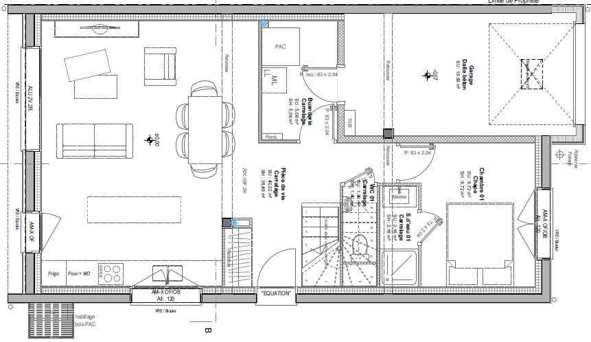
Sur un terrain de 281 m², situé dans un cadre agréable, nous vous proposons une maison, d'une surface de 103 m², comprenant un espace de vie de 38 m² (possibilité d'une plus grande pièce de vie si pas de chambre au rez-de-chaussée), une chambre avec salle d'eau, une buanderie et WC séparés.
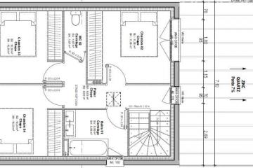
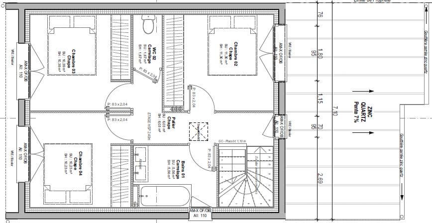
A l'étage, le projet prévoit 3 chambres, une salle de bains et WC séparés.
Le projet inclut également un garage.
Le prix total du projet (terrain + maison) est de 265 706 € (hors frais annexes d'environ 25000€).
Informations complémentaires
| Chambre(s) : 4 | Salle(s) de bain : 2 | Surface habitable : 103 m² |
| Surface terrain : 281 m² | Surface annexe : 38 m² | Garage(s) : 1 |
| Prix : 306 170 € |
Géolocalisation du bien
*Terrain proposé et vendu par notre partenaire foncier selon disponibilité et autorisation de publicité, prix du terrain hors frais de notaire et d’hypothèque.
Prix maison : hors papiers peints, peintures, revêtements de sol dans les chambres, cuisines, meubles vasques, et faïences (modifiable sans préavis, prix variables suivant les prestations souhaitées) hors frais d’hypothèque.




