Exclusivité à GÉVEZÉ !
À proximité de des transports et commerces, dans un petit lotissement au cœur de la verdure, cette maison contemporaine bénéficie d'une belle luminosité et d'un jardin de 354m².
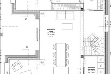
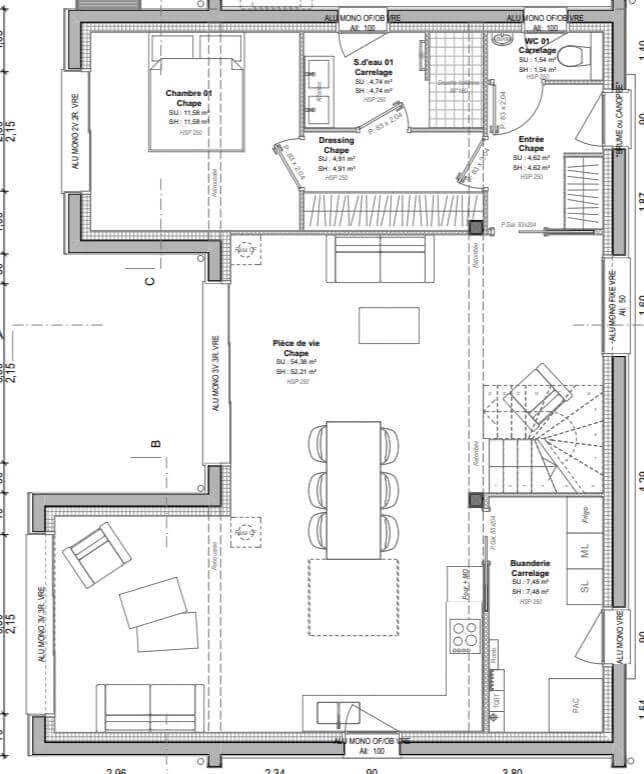
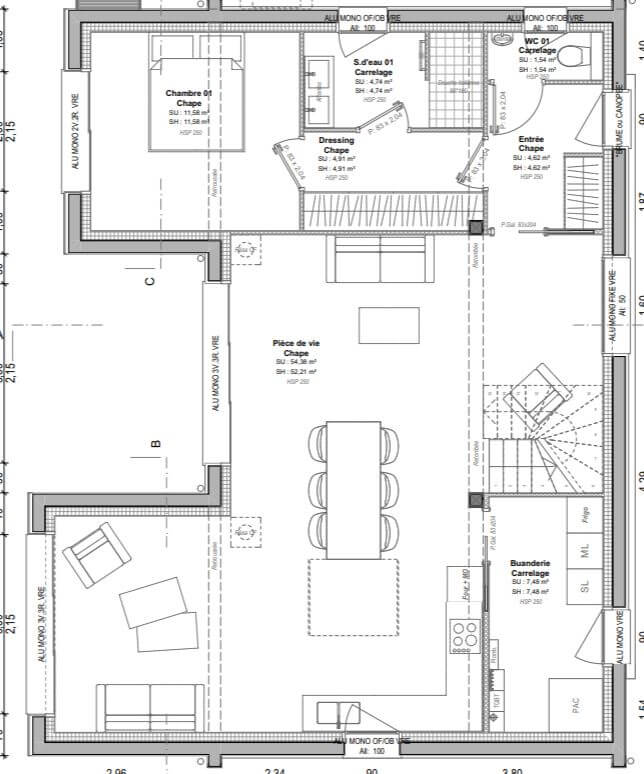
Cette maison comprend au rez-de-chaussée, une entrée, un sapcieux salon-séjour, une cuisine ouverte, une chambre parentale de 20m², avec une salle d'eau et dressing, des WC séparés
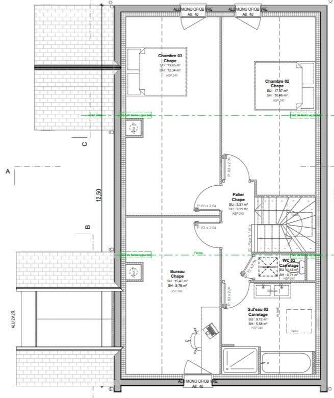
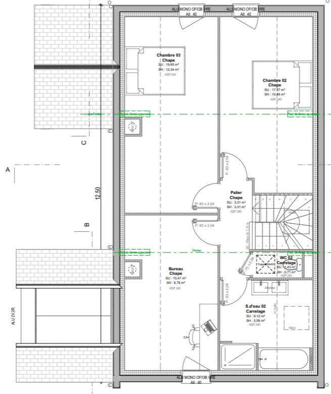
A l'étage, vous pourrez profiter, de 3 chambres avec placard, une salle de bains avec baignire et douche, et de WC séparés.
Cette maison dispose également d'un garage.
Votre projet Maison + Terrain à partir de 387900€ (Hors frais)
PROJET ENTIEREMENT PERSONNALISABLE.
Informations complémentaires
| Chambre(s) : 4 | Salle(s) de bain : 2 | Surface habitable : 130 m² | 
| Surface terrain : 354 m² | Surface annexe : 52 m² | Garage(s) : 1 | 
| Prix : 387 900 € | 
Géolocalisation du bien
            *Terrain proposé et vendu par notre partenaire foncier selon disponibilité et autorisation de publicité, prix du terrain hors frais de notaire et d’hypothèque.
Prix maison : hors papiers peints, peintures, revêtements de sol dans les chambres, cuisines, meubles vasques, et faïences (modifiable sans préavis, prix variables suivant les prestations souhaitées) hors frais d’hypothèque.        
 
            
 
                                        



