Exclusivité à GÉVEZÉ !
À proximité des transports et commerces, dans un petit lotissement au cœur de la verdure, cette maison contemporaine bénéficie d'une belle luminosité et d'un jardin de 415m².
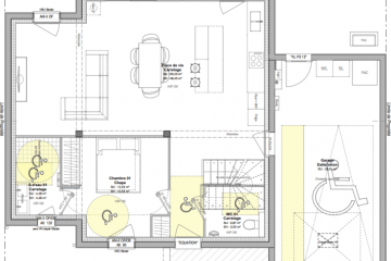
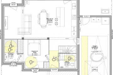
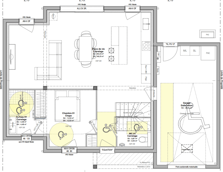
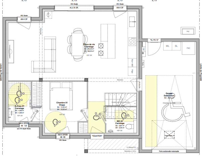
Cette maison comprend au rez-de-chaussée, une entrée, un spacieux salon-séjour, une cuisine ouverte, une chambre parentale de 18m², avec une salle d'eau, des WC séparés
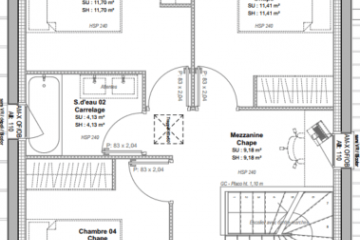
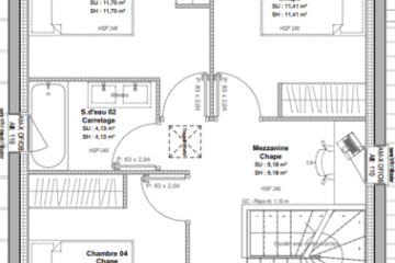
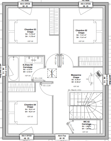
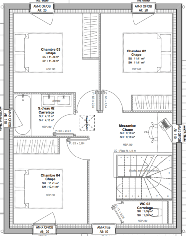
A l'étage, vous pourrez profiter, de 3 chambres avec placard, une salle de bains, de WC séparés d'un bureau dans le dégagement.
Cette maison dispose également d'un garage attenant.
Votre projet Maison + Terrain à partir de 382150€ (Hors frais)
PROJET ENTIEREMENT PERSONNALISABLE.
NON MANDATÉ POUR LA VENTE DES TERRAINS
Maisons CREATION Rennes n’est pas chargé de réaliser la vente des terrains à bâtir mentionnés dans ces annonces.
Maisons CREATION Rennes agit seulement en qualité de constructeur.
Informations complémentaires
| Chambre(s) : 4 | Salle(s) de bain : 2 | Surface habitable : 117 m² | 
| Surface terrain : 415 m² | Surface annexe : 50 m² | Garage(s) : 1 | 
| Prix : 382 150 € | 
Géolocalisation du bien
            *Terrain proposé et vendu par notre partenaire foncier selon disponibilité et autorisation de publicité, prix du terrain hors frais de notaire et d’hypothèque.
Prix maison : hors papiers peints, peintures, revêtements de sol dans les chambres, cuisines, meubles vasques, et faïences (modifiable sans préavis, prix variables suivant les prestations souhaitées) hors frais d’hypothèque.        
            
                                        



