Exclusivité à GÉVEZÉ !
À proximité de des transports et commerces, dans un petit lotissement au cœur de la verdure, cette maison contemporaine bénéficie d'une belle luminosité et d'un jardin de 415m².
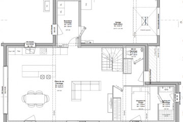
Cette maison comprend au rez-de-chaussée, une entrée, un sapcieux salon-séjour, une cuisine ouverte, un cellier-buanderie, une chambre avec une salle d'eau, des WC séparés
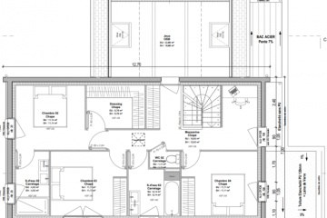
A l'étage, vous pourrez profiter, d'une suite parentale de 21 m², de 2 chambres avec placard, une chambre/salle de jeux, une salle de bains, de WC séparés d'un bureau dans le dégagement.
Cette maison dispose également d'un garage.
Votre projet Maison + Terrain à partir de 347900€ (Hors frais)
PROJET ENTIEREMENT PERSONNALISABLE.
Informations complémentaires
| Chambre(s) : 5 | Salle(s) de bain : 3 | Surface habitable : 100 m² |
| Surface terrain : 415 m² | Surface annexe : 60 m² | Garage(s) : 1 |
| Prix : 347 900 € |
Géolocalisation du bien
*Terrain proposé et vendu par notre partenaire foncier selon disponibilité et autorisation de publicité, prix du terrain hors frais de notaire et d’hypothèque.
Prix maison : hors papiers peints, peintures, revêtements de sol dans les chambres, cuisines, meubles vasques, et faïences (modifiable sans préavis, prix variables suivant les prestations souhaitées) hors frais d’hypothèque.





