Informations complémentaires

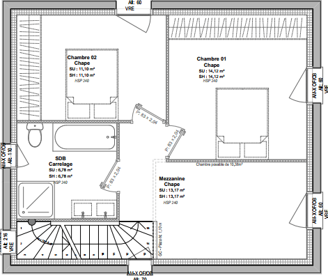
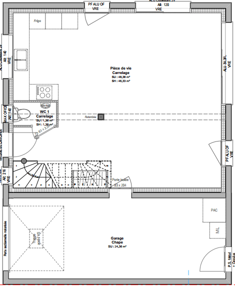
Chambre(s) : 3 Salle(s) de bain : 1 Surface habitable : 100 m²
Surface terrain : 436 m² Surface annexe : 50 m² Garage(s) : 1
Prix : 251 650 €

Géolocalisation du bien

*Terrain proposé et vendu par notre partenaire foncier selon disponibilité et autorisation de publicité, prix du terrain hors frais de notaire et d’hypothèque.
Prix maison : hors papiers peints, peintures, revêtements de sol dans les chambres, cuisines, meubles vasques, et faïences (modifiable sans préavis, prix variables suivant les prestations souhaitées) hors frais d’hypothèque.

Partager cette page

Sur les réseaux sociaux :

Ou par e-mail :

Création d'une nouvelle alerte terrain

Pour recevoir par email les derniers biens ajoutés de Maisons CREATION, choisissez le secteur recherché