Essé est une commune du département d'Ille-et-Vilaine (35), située à 20 minutes au Sud de Rennes et à 4km de Janzé, sur l'axe de Rennes - Angers.
Commune dynamique qui dispose d'une épicerie, médiathèque et proche de Janzé.
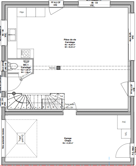
Sur un terrain de 436m², nous vous proposons une maison, comprenant :
* au rez-de-chaussée : une entrée, une pièce de vie de 50m² avec cuisine ouverte et WC séparés,
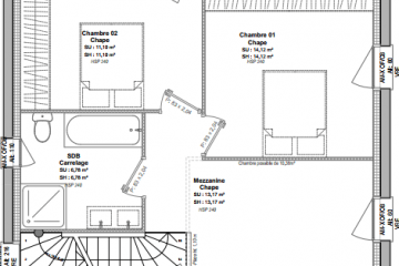
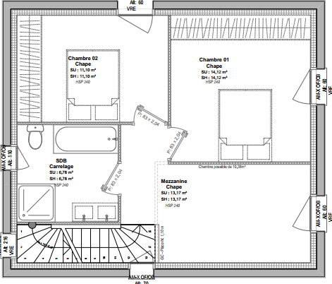
* à l'étage : 2 grandes chambres avec placards, une salle des bains avec WC et une grande mezzanine offrant la possibilité d'être cloisonnée et d'avoir une 3ème chambre.
Garage inclus.
Projet entièrement personnalisable.
Informations complémentaires
| Chambre(s) : 3 | Salle(s) de bain : 1 | Surface habitable : 100 m² |
| Surface terrain : 436 m² | Surface annexe : 50 m² | Garage(s) : 1 |
| Prix : 251 650 € |
Géolocalisation du bien
*Terrain proposé et vendu par notre partenaire foncier selon disponibilité et autorisation de publicité, prix du terrain hors frais de notaire et d’hypothèque.
Prix maison : hors papiers peints, peintures, revêtements de sol dans les chambres, cuisines, meubles vasques, et faïences (modifiable sans préavis, prix variables suivant les prestations souhaitées) hors frais d’hypothèque.




