MAISONS CRÉATION vous propose un projet de construction RE2020 situé en plein bourg de EPINIAC, à proximité directe de l’ensemble des commodités de Dol-de-Bretagne.
Le projet est implanté sur un terrain de 402 m², exposé SUD-OUEST, offrant un cadre de vie pratique et agréable.
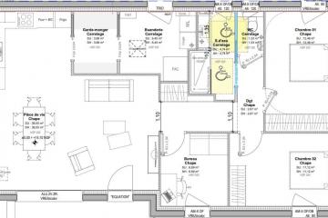
Cet exemple de maison RE2020 développe 87 m² habitables et se compose :
- Un bel espace de vie très lumineux
- 2 chambres
- 1 bureau
- 1 salle d’eau
- WC séparé
- Une arrière-cuisine avec buanderie attenante, apportant un réel confort au quotidien
Un projet personnalisable
Projet incluant le prix du terrain, les garanties et assurances (hors frais annexes liés au terrain et aux finitions de la maison).
Pour plus de renseignements, contactez notre équipe commerciale MAISONS CRÉATION : 02 99 05 36 46
Informations complémentaires
| Chambre(s) : 3 | Salle(s) de bain : 1 | Surface habitable : 87 m² |
| Surface terrain : 402 m² | Surface annexe : 38 m² | Garage(s) : 0 |
| Prix : 236 000 € |
Géolocalisation du bien
*Terrain proposé et vendu par notre partenaire foncier selon disponibilité et autorisation de publicité, prix du terrain hors frais de notaire et d’hypothèque.
Prix maison : hors papiers peints, peintures, revêtements de sol dans les chambres, cuisines, meubles vasques, et faïences (modifiable sans préavis, prix variables suivant les prestations souhaitées) hors frais d’hypothèque.




