MAISONS CRÉATION vous propose un projet de construction sur mesure situé à Domloup, dans la ZAC du Tertre, à 10 minutes de Rennes.
Maison 135 m² – 4 chambres – Garage
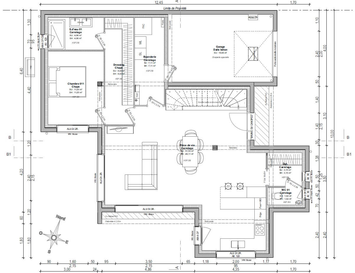
Cet exemple de maison de 135 m² habitables se compose :
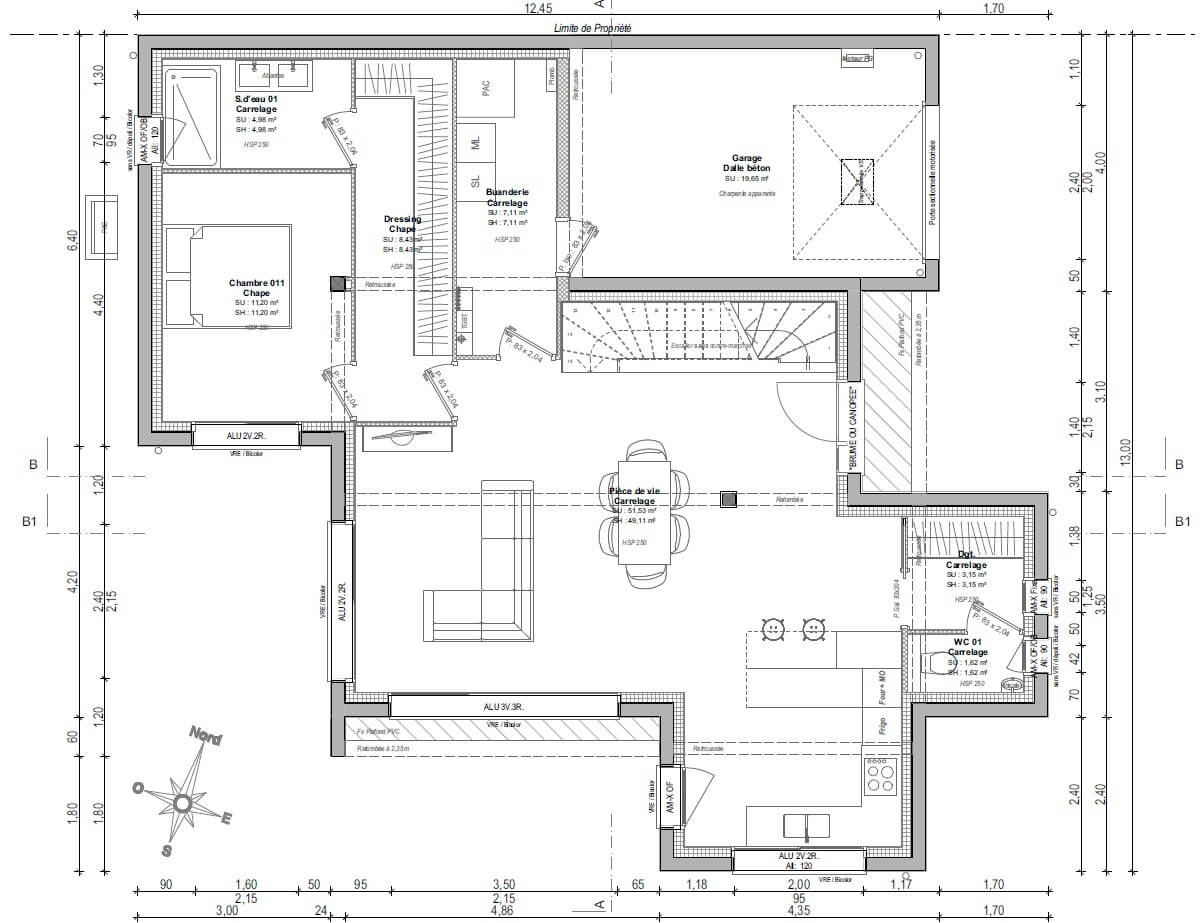
Au rez-de-chaussée :
- Une entrée
- Une pièce de vie d’environ 50 m² avec cuisine ouverte
- Une buanderie
- Une suite parentale avec dressing et salle d’eau
- Des WC séparés
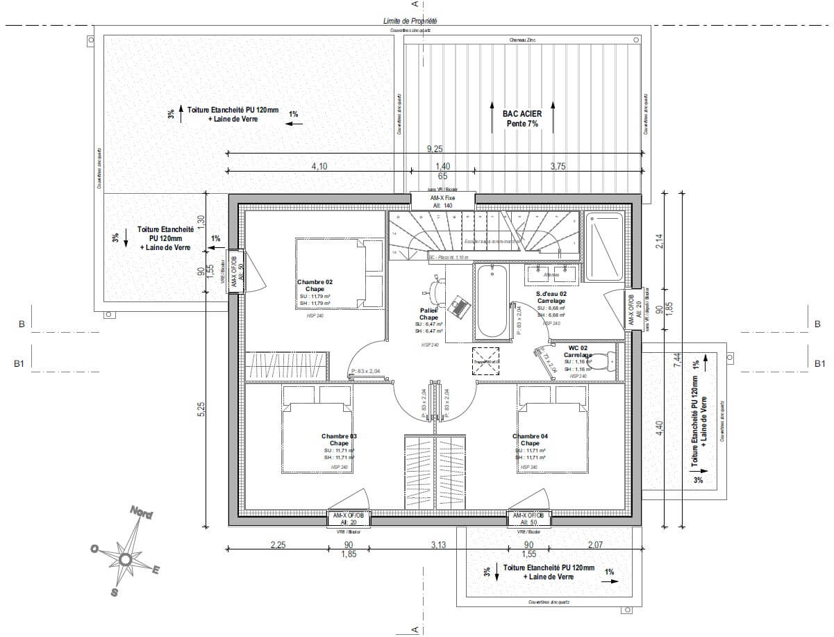
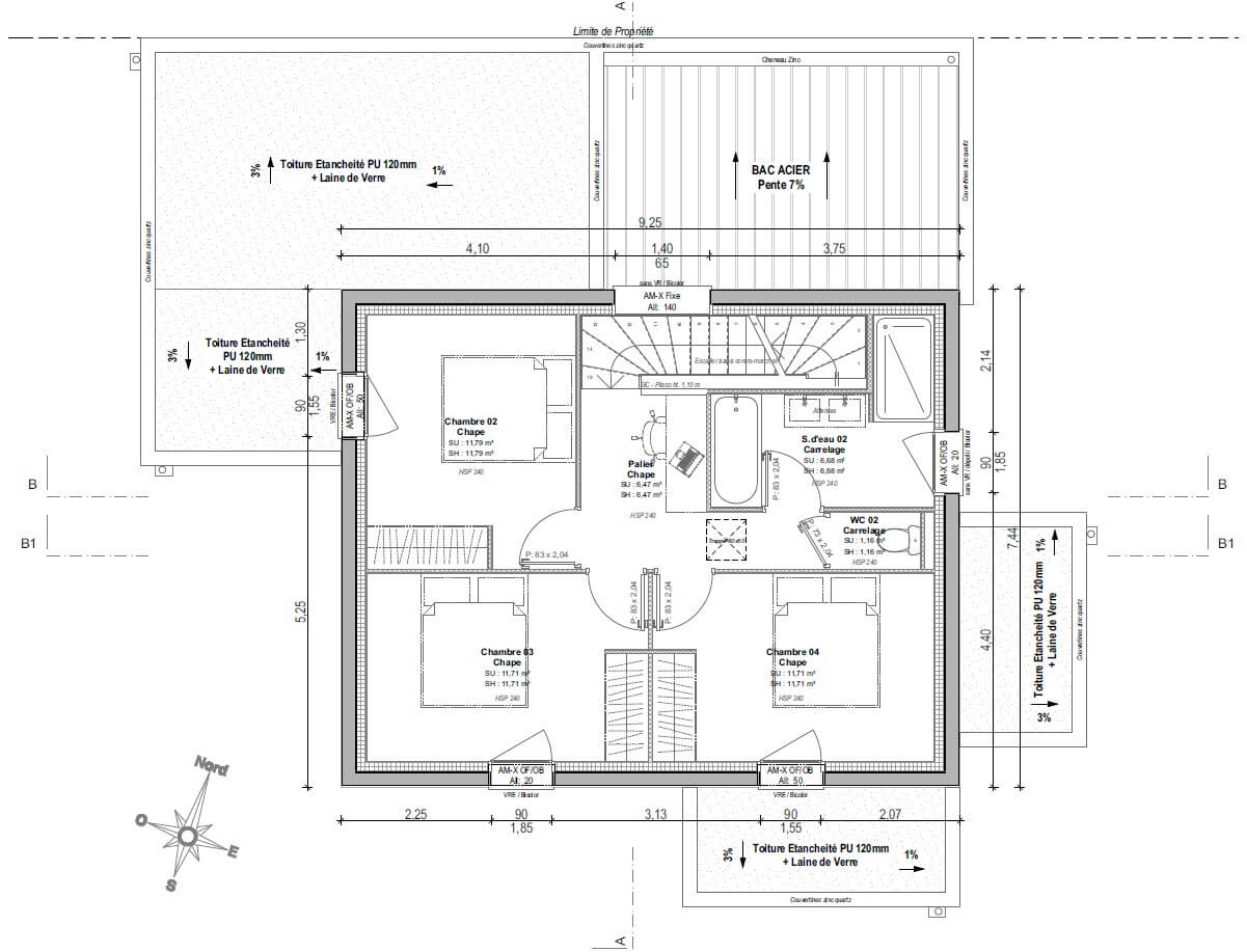
À l’étage :
- 3 chambres avec placards
- Une salle de bain
- Des WC séparés
Annexes
- Un garage
Informations complémentaires
| Chambre(s) : 3 | Salle(s) de bain : 2 | Surface habitable : 135 m² |
| Surface terrain : 358 m² | Surface annexe : 40 m² | Garage(s) : 1 |
| Prix : 349 750 € |
Géolocalisation du bien
*Terrain proposé et vendu par notre partenaire foncier selon disponibilité et autorisation de publicité, prix du terrain hors frais de notaire et d’hypothèque.
Prix maison : hors papiers peints, peintures, revêtements de sol dans les chambres, cuisines, meubles vasques, et faïences (modifiable sans préavis, prix variables suivant les prestations souhaitées) hors frais d’hypothèque.





