Située dans la ZAC du TERTRE à DOMLOUP, à seulement 10 minutes de RENNES, MAISONS CRÉATION vous propose de concevoir un projet sur mesure qui répond à vos besoins et à vos envies.
Terrain de 358 m², orienté SUD-OUEST.
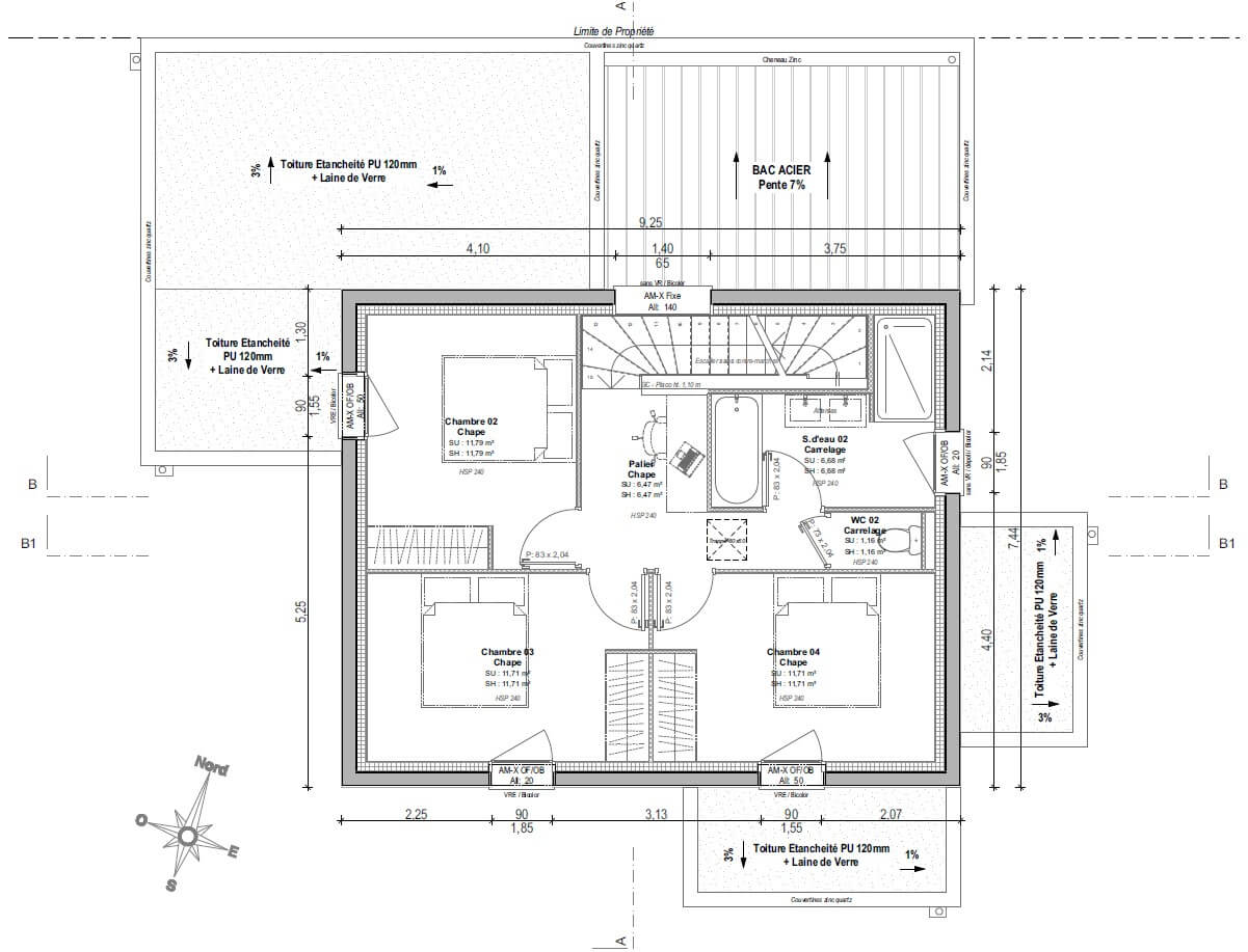
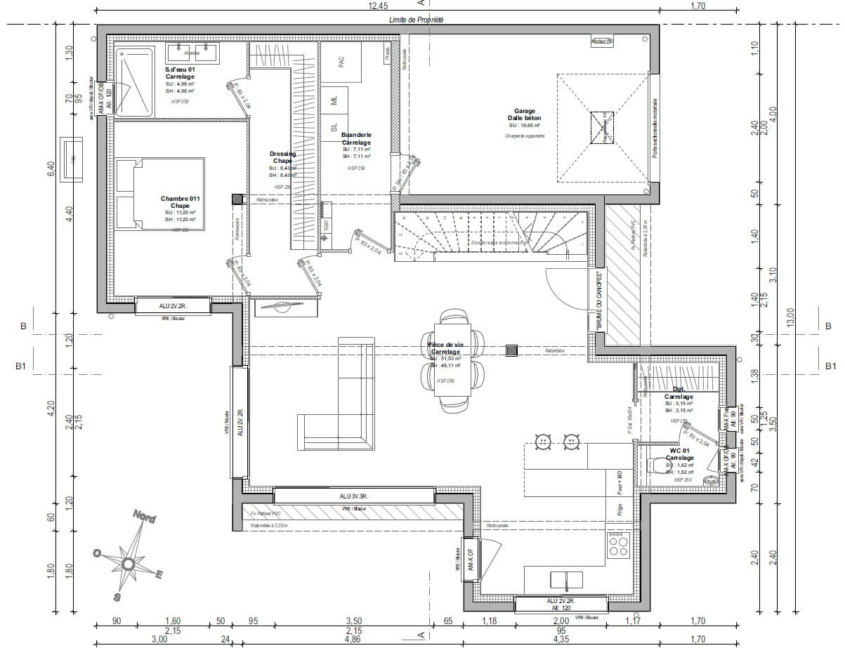
Maison 4 chambres et 135m² habitables, comprenant :
- Au rez-de-chaussée : entrée, pièce de vie d'environ 50 m² avec cuisine ouverte, une buanderie, une suite parentale avec dressing et salle d'eau, WC séparés.
- À l’étage vous trouverez 3 chambres avec placards, une salle de bain et WC séparés.
Un garage vient compléter ce projet entièrement personnalisable.
Pour plus de renseignements contactez-nous au 02 99 05 36 46.
Informations complémentaires
| Chambre(s) : 3 | Salle(s) de bain : 2 | Surface habitable : 135 m² |
| Surface terrain : 358 m² | Surface annexe : 40 m² | Garage(s) : 1 |
| Prix : 349 750 € |
Géolocalisation du bien
*Terrain proposé et vendu par notre partenaire foncier selon disponibilité et autorisation de publicité, prix du terrain hors frais de notaire et d’hypothèque.
Prix maison : hors papiers peints, peintures, revêtements de sol dans les chambres, cuisines, meubles vasques, et faïences (modifiable sans préavis, prix variables suivant les prestations souhaitées) hors frais d’hypothèque.





