MAISONS CREATION vous propose un projet de construction personnalisable situé à Domloup, dans la ZAC du Tertre, sur un terrain de 305 m² exposé plein SUD.
Cet exemple de maison se compose :
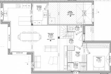
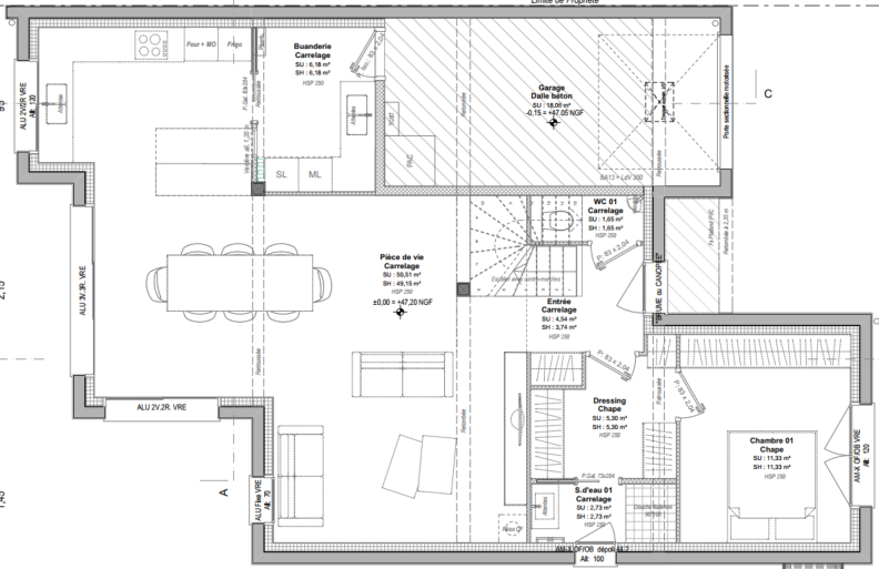
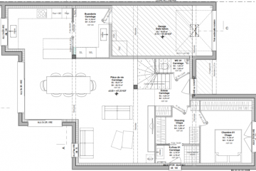
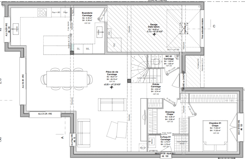
Au rez-de-chaussée :
- Une suite parentale
- Une pièce de vie d’environ 50 m², lumineuse
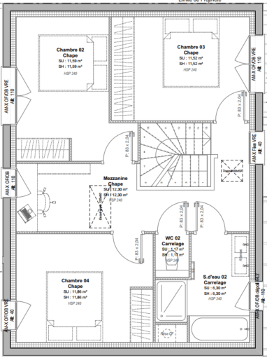
À l’étage :
- 3 chambres
Annexes
- Un garage
Le terrain est situé à Domloup, avec un accès facile aux commerces, écoles et transports, dans un environnement calme et agréable.
Informations complémentaires
| Chambre(s) : 4 | Salle(s) de bain : 2 | Surface habitable : 130 m² |
| Surface terrain : 305 m² | Surface annexe : 50 m² | Garage(s) : 1 |
| Prix : 341 500 € |
Géolocalisation du bien
*Terrain proposé et vendu par notre partenaire foncier selon disponibilité et autorisation de publicité, prix du terrain hors frais de notaire et d’hypothèque.
Prix maison : hors papiers peints, peintures, revêtements de sol dans les chambres, cuisines, meubles vasques, et faïences (modifiable sans préavis, prix variables suivant les prestations souhaitées) hors frais d’hypothèque.





