MAISONS CRÉATION vous propose un projet de construction RE2020 situé à proximité immédiate du centre-ville de Dol-de-Bretagne, dans un cadre paisible et verdoyant, à deux pas de toutes les commodités et commerces.
Le projet est implanté sur un terrain de 394 m², offrant un cadre de vie confortable et pratique.
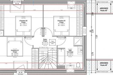
Cet exemple de maison RE2020 développe 92 m² habitables et se compose :
Au rez-de-chaussée :
- Un très bel espace de vie lumineux
- Une suite parentale avec dressing
- Un garage
À l’étage :
- 3 belles chambres
- Une salle de bains
Un projet personnalisable
Projet incluant le prix du terrain, les garanties et assurances (hors frais annexes liés au terrain et aux finitions de la maison).
Pour plus de renseignements, contactez notre équipe commerciale MAISONS CRÉATION : 02 99 05 36 46
Informations complémentaires
| Chambre(s) : 3 | Salle(s) de bain : 1 | Surface habitable : 92 m² |
| Surface terrain : 394 m² | Surface annexe : 45 m² | Garage(s) : 1 |
| Prix : 260 000 € |
Géolocalisation du bien
*Terrain proposé et vendu par notre partenaire foncier selon disponibilité et autorisation de publicité, prix du terrain hors frais de notaire et d’hypothèque.
Prix maison : hors papiers peints, peintures, revêtements de sol dans les chambres, cuisines, meubles vasques, et faïences (modifiable sans préavis, prix variables suivant les prestations souhaitées) hors frais d’hypothèque.




