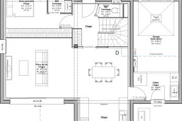
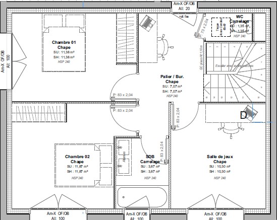
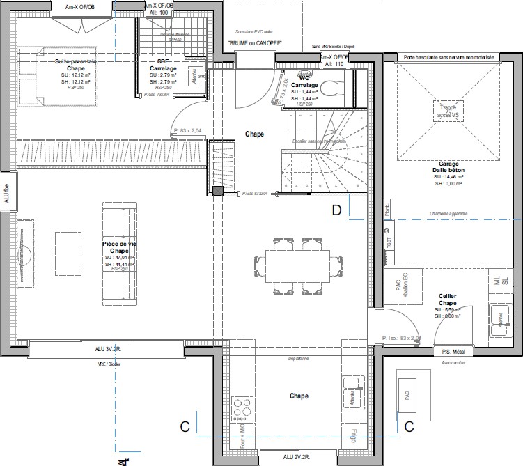
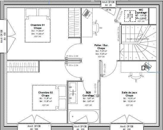
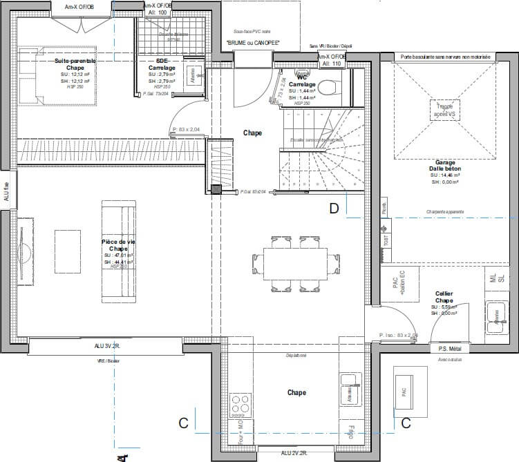
Sur grand terrain de 414 m² dans un tout nouveau lotissement sur la commune de Dol-de-Bretagne, dans un cadre paisible et verdoyant, nous vous proposons une MAISON RE2020 à étage d'une surface de 106 m² disposant au rez-de-chaussée d'un très bel espace de vie très lumineux, 1 suite parentale et un garage. A l'étage on retrouve 3 belles chambres, une salle de bains.
Terrain avec une superbe exposition et un très bel emplacement dans le lotissement car il bénéficie d'une entrée Nord-Est, favorisant les espaces de vie au Sud et à l'Ouest.
Chez Maisons Creation, tous nos projets sont intégralement personnalisés, tant au niveau de la conception intérieure et architecturale du projet, qu'à la définition du niveau de prestations que vous souhaitez.
Projet incluant prix du terrain, garanties et assurances incluses, hors frais annexes liés au terrain et aux finitions de la maison.
Informations complémentaires
| Chambre(s) : 3 | Salle(s) de bain : 2 | Surface habitable : 106 m² |
| Surface terrain : 414 m² | Surface annexe : 40 m² | Garage(s) : 1 |
| Prix : 295 000 € |
Géolocalisation du bien
*Terrain proposé et vendu par notre partenaire foncier selon disponibilité et autorisation de publicité, prix du terrain hors frais de notaire et d’hypothèque.
Prix maison : hors papiers peints, peintures, revêtements de sol dans les chambres, cuisines, meubles vasques, et faïences (modifiable sans préavis, prix variables suivant les prestations souhaitées) hors frais d’hypothèque.




