MAISONS CRÉATION vous propose un projet de construction RE2020 situé à Dol-de-Bretagne, au sein d’un tout nouveau lotissement, dans un cadre paisible et verdoyant.
Le projet est implanté sur un terrain de 414 m², bénéficiant d’une excellente exposition et d’un emplacement privilégié dans le lotissement. Son entrée Nord-Est permet d’optimiser les espaces de vie orientés SUD et OUEST, pour un confort lumineux au quotidien.
Cet exemple de maison RE2020 développe 106 m² habitables et se compose :
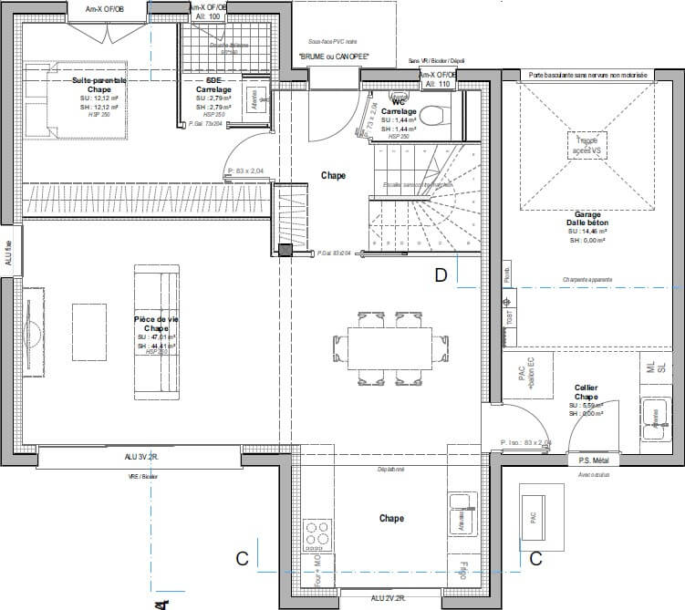
Au rez-de-chaussée :
- Un très bel espace de vie lumineux
- Une suite parentale
- Un garage
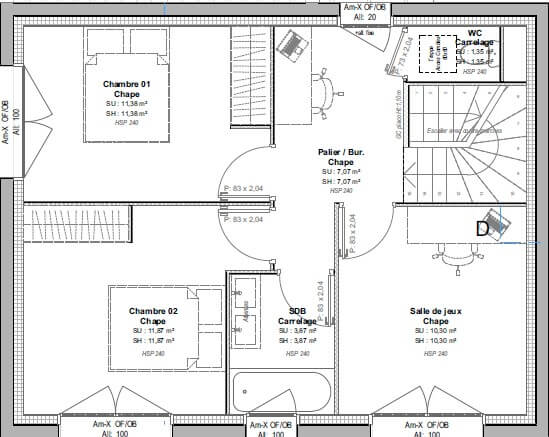
À l’étage :
- 3 belles chambres
- Une salle de bains
Un projet personnalisable
Projet incluant le prix du terrain, les garanties et assurances (hors frais annexes liés au terrain et aux finitions de la maison).
Pour plus de renseignements, contactez notre équipe commerciale MAISONS CRÉATION : 02 99 05 36 46
Informations complémentaires
| Chambre(s) : 3 | Salle(s) de bain : 2 | Surface habitable : 106 m² |
| Surface terrain : 414 m² | Surface annexe : 40 m² | Garage(s) : 1 |
| Prix : 295 000 € |
Géolocalisation du bien
*Terrain proposé et vendu par notre partenaire foncier selon disponibilité et autorisation de publicité, prix du terrain hors frais de notaire et d’hypothèque.
Prix maison : hors papiers peints, peintures, revêtements de sol dans les chambres, cuisines, meubles vasques, et faïences (modifiable sans préavis, prix variables suivant les prestations souhaitées) hors frais d’hypothèque.




