Entre terre et mer, dans le centre de DINGE (30 minutes de Rennes - 30 minutes de Saint-Malo) et proche de toutes commodités.
Vous pourrez également profiter de la proximité de la villede Combourg, de ses commerces, collège, lycée et de sa gare.
Dans un petit lotissement de 9 lots au calme et arboré, nous vous proposons de construire votre maison personnalisée sur un Terrain 609 m².
Maisons CREATION Dinan est là pour réaliser votre projet de maison personnalisée,
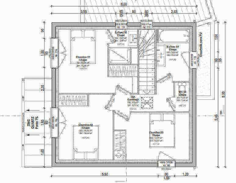
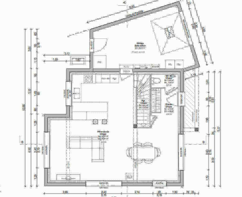
Maison personnalisable d'une superficie de 100 m² répartie sur deux niveaux.
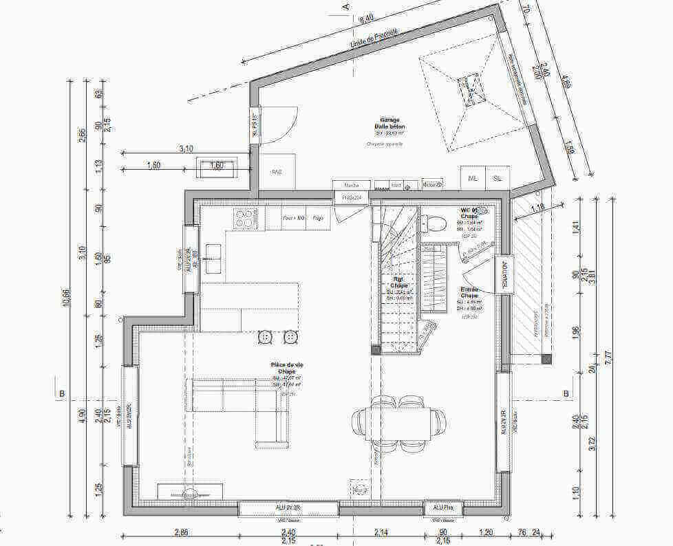
Le rez-de-chaussée se compose d'une entrée avec placard et un WC discret, d'un séjour/cuisine de 47 m² ouvert sur l'extérieur grâce aux baies vitrées qui laissent entrer la lumière. La cuisine donne accès à un garage de 22 m².
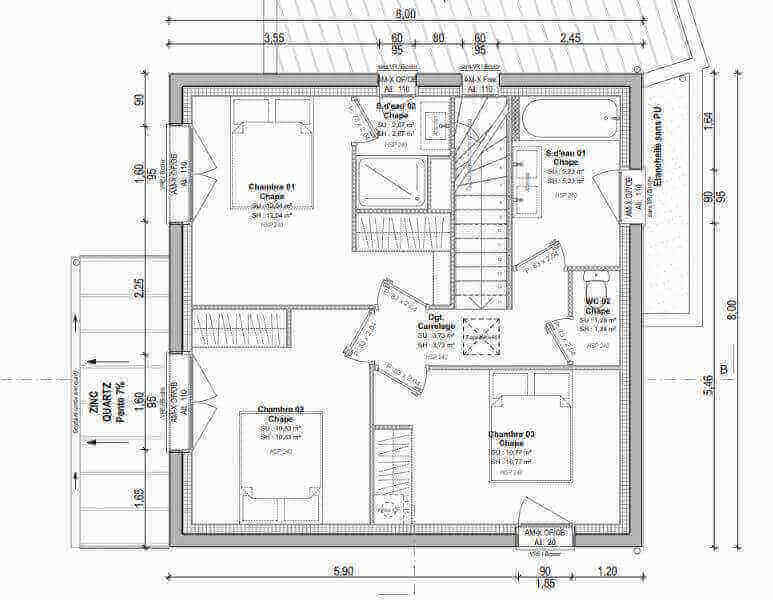
À l'étage, le palier dessert deux chambres de 11 m² avec placard, une suite parentale avec dressing et salle d'eau, une salle de bain et un WC.
N'hésitez pas à nous contacter pour plus de renseignements.
Chez Maisons Creation, nous personnalisons entièrement tous nos projets pour répondre à vos attentes en termes de conception et de prestations.
*Terrain proposé et vendu par notre partenaire foncier selon disponibilité et autorisation de publicité, prix du terrain hors frais de notaire et d’hypothèque.
Prix maison : hors papiers peints, peintures, revêtements de sol dans les chambres, cuisines, meubles vasques, et faïences (modifiable sans préavis, prix variables suivant les prestations souhaitées) hors frais d’hypothèque.
Informations complémentaires
| Chambre(s) : 3 | Salle(s) de bain : 1 | Surface habitable : 100 m² |
| Surface terrain : 670 m² | Surface annexe : 46 m² | Garage(s) : 1 |
| Prix : 276 900 € |
Géolocalisation du bien
*Terrain proposé et vendu par notre partenaire foncier selon disponibilité et autorisation de publicité, prix du terrain hors frais de notaire et d’hypothèque.
Prix maison : hors papiers peints, peintures, revêtements de sol dans les chambres, cuisines, meubles vasques, et faïences (modifiable sans préavis, prix variables suivant les prestations souhaitées) hors frais d’hypothèque.





