MAISONS CRÉATION vous propose un projet de construction personnalisable situé au centre de Dingé, entre Rennes et Saint-Malo (environ 30 minutes), à proximité de toutes les commodités.
Vous bénéficiez également de la proximité de Combourg, de ses commerces, collège, lycée et de sa gare.
Le projet est implanté au sein d’un petit lotissement de 9 lots, au calme et arboré, sur un terrain de 609 m².
Maison 100 m² – 3 chambres – Garage
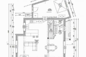
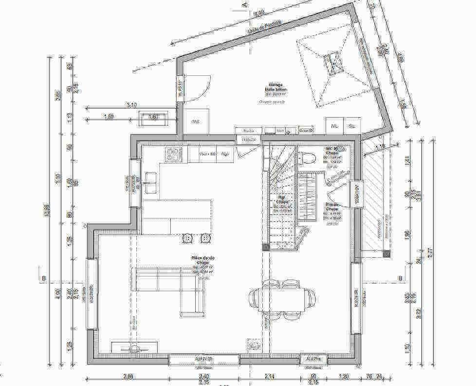
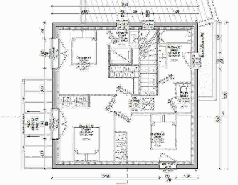
Cet exemple de maison de 100 m² habitables, répartie sur deux niveaux, se compose :
Au rez-de-chaussée :
- Une entrée avec placard
- Un WC
- Un séjour / cuisine de 47 m², ouvert sur l’extérieur grâce aux baies vitrées
- Une cuisine avec accès direct au garage de 22 m²
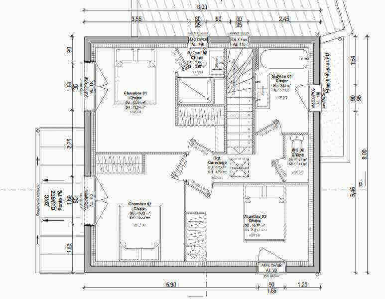
À l’étage :
- 2 chambres de 11 m² avec placards
- Une suite parentale avec dressing et salle d’eau
- Une salle de bain
- Un WC
Ce projet est entièrement personnalisable, afin de répondre à vos attentes en matière de conception, d’agencement et de prestations.
Pour plus de renseignements, contactez notre équipe commerciale MAISONS CRÉATION : 02 99 05 36 46
Informations complémentaires
| Chambre(s) : 3 | Salle(s) de bain : 1 | Surface habitable : 100 m² |
| Surface terrain : 670 m² | Surface annexe : 46 m² | Garage(s) : 1 |
| Prix : 276 900 € |
Géolocalisation du bien
*Terrain proposé et vendu par notre partenaire foncier selon disponibilité et autorisation de publicité, prix du terrain hors frais de notaire et d’hypothèque.
Prix maison : hors papiers peints, peintures, revêtements de sol dans les chambres, cuisines, meubles vasques, et faïences (modifiable sans préavis, prix variables suivant les prestations souhaitées) hors frais d’hypothèque.





