Ensemble, dessinons votre projet de MAISONS CREATION, sur ce terrain viabilisé, idéalement situé dans un quartier calme et verdoyant à seulement quelques pas de la zone commerciale de Léhon, du complexe scolaire et sportif de la Nourais et du centre hospitalier.
Ainsi vous apprécierez la proximité de toutes les commodités, associée au calme de la campagne environnante et au panorama d'exception offert par le site.
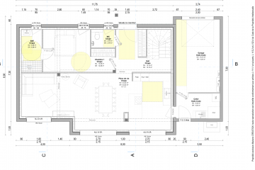
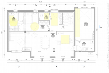
Nous vous proposons une maison RE2020 à personnaliser d'une superficie de 124 m², disposant au rez-de-chaussée d'un espace de vie très lumineux, d'une suite parentale avec dressing et d'un garage.
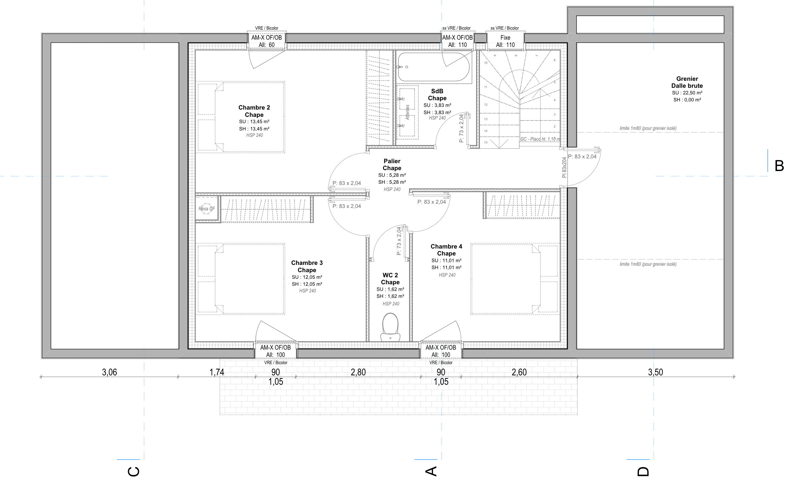
À l'étage, vous trouverez trois belles chambres et une salle de bains.
Chez Maisons Création, nous personnalisons intégralement tous nos projets, en ce qui concerne la conception intérieure et architecturale, ainsi que le niveau de prestations et de matériaux souhaités.
*Terrain proposé et vendu par notre partenaire foncier selon disponibilité et autorisation de publicité, prix du terrain hors frais de notaire et d’hypothèque.
Prix maison : hors papiers peints, peintures, revêtements de sol dans les chambres, cuisines, meubles vasques, et faïences (modifiable sans préavis, prix variables suivant les prestations souhaitées) hors frais d’hypothèque.
Informations complémentaires
| Chambre(s) : 4 | Salle(s) de bain : 2 | Surface habitable : 124 m² |
| Surface terrain : 380 m² | Surface annexe : 46 m² | Garage(s) : 1 |
| Prix : 312 000 € |
Géolocalisation du bien
*Terrain proposé et vendu par notre partenaire foncier selon disponibilité et autorisation de publicité, prix du terrain hors frais de notaire et d’hypothèque.
Prix maison : hors papiers peints, peintures, revêtements de sol dans les chambres, cuisines, meubles vasques, et faïences (modifiable sans préavis, prix variables suivant les prestations souhaitées) hors frais d’hypothèque.





