MAISONS CRÉATION DINAN vous propose un projet de construction personnalisable sur un terrain viabilisé, situé à Léhon, dans un quartier calme et verdoyant, à proximité immédiate de la zone commerciale de Léhon, du complexe scolaire et sportif de la Nourais et du centre hospitalier.
Le projet bénéficie d’un environnement privilégié, alliant la proximité des commodités, le calme de la campagne environnante et un panorama d’exception.
Maison RE2020 – 124 m² – 4 chambres – Garage
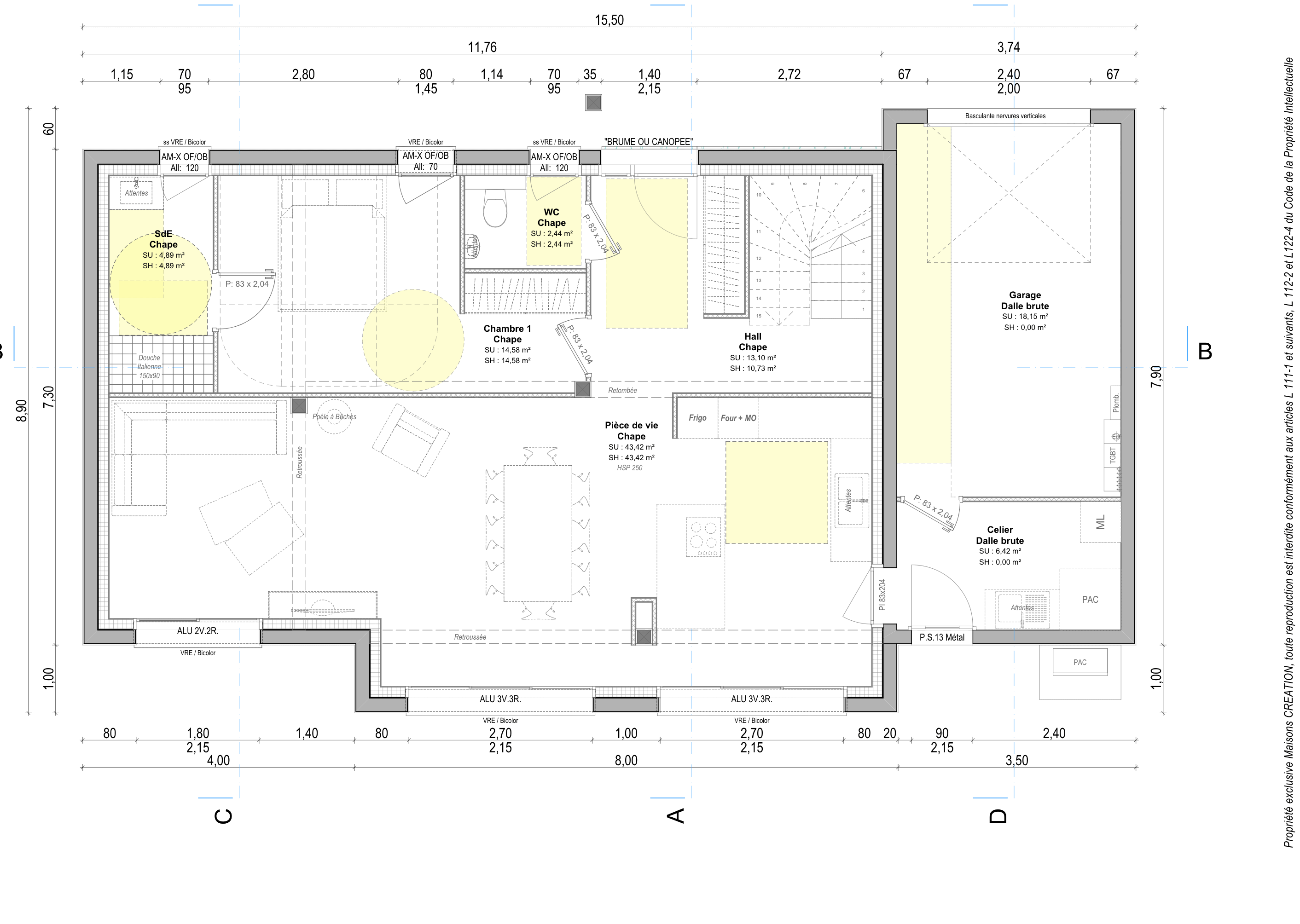
Cet exemple de maison de 124 m² habitables, conforme à la RE2020, se compose :
Au rez-de-chaussée :
- Un espace de vie très lumineux
- Une suite parentale avec dressing
- Un garage
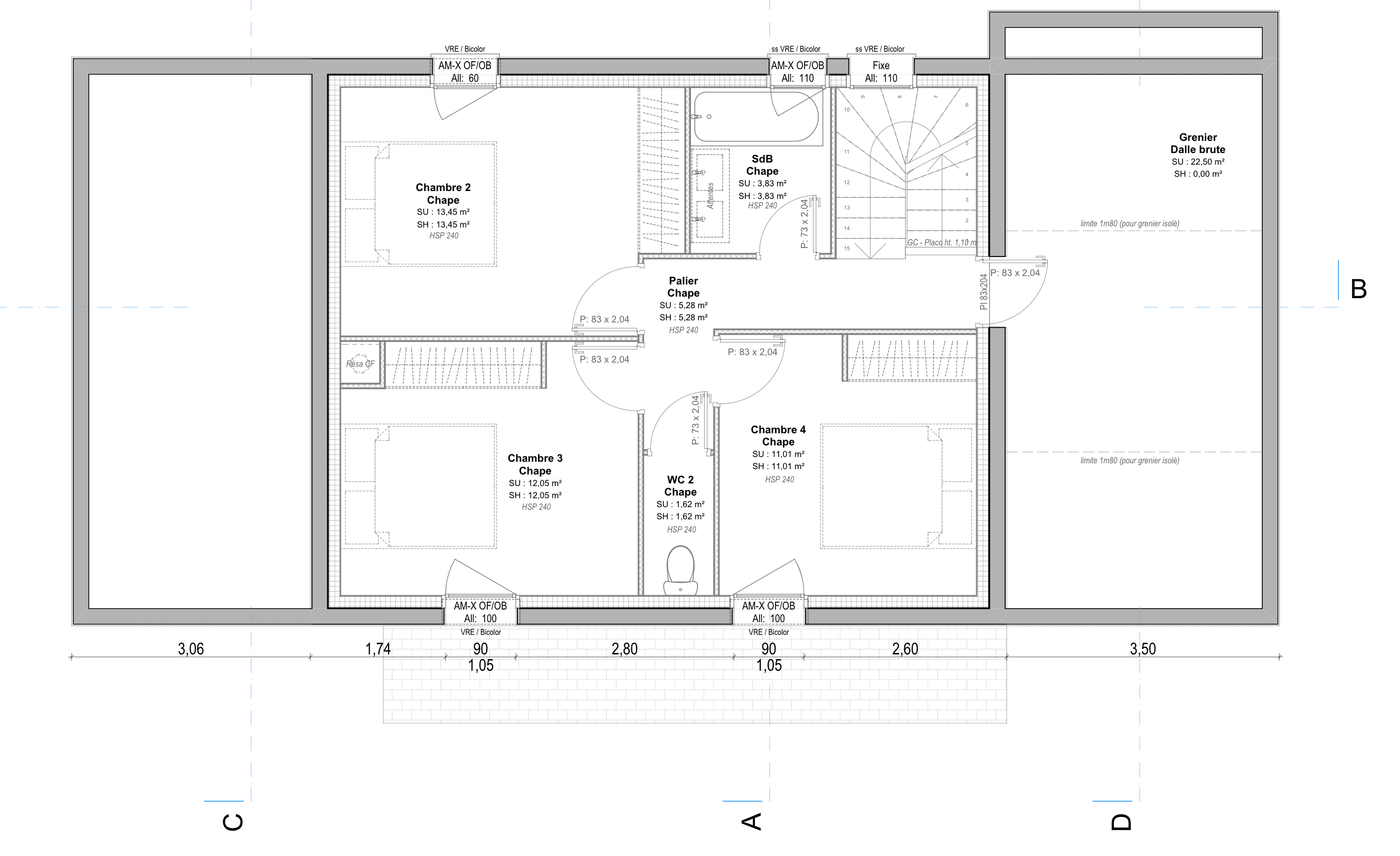
À l’étage :
- 3 chambres
- Une salle de bains
Ce projet est entièrement personnalisable, tant dans la conception intérieure et architecturale que dans le choix des prestations et des matériaux.
Pour de plus amples renseignements, contactez notre équipe commerciale MAISONS CRÉATION : 02 99 05 36 46
Informations complémentaires
| Chambre(s) : 4 | Salle(s) de bain : 2 | Surface habitable : 124 m² |
| Surface terrain : 380 m² | Surface annexe : 46 m² | Garage(s) : 1 |
| Prix : 312 000 € |
Géolocalisation du bien
*Terrain proposé et vendu par notre partenaire foncier selon disponibilité et autorisation de publicité, prix du terrain hors frais de notaire et d’hypothèque.
Prix maison : hors papiers peints, peintures, revêtements de sol dans les chambres, cuisines, meubles vasques, et faïences (modifiable sans préavis, prix variables suivant les prestations souhaitées) hors frais d’hypothèque.





