MAISONS CRÉATION vous propose un projet de construction situé à Crevin, à proximité immédiate de l’axe Rennes – Nantes, dans un secteur recherché.
Le projet est implanté sur un terrain de 425 m², orienté SUD, offrant une belle luminosité et un jardin agréable.
Maison contemporaine – 119 m² – 3 chambres – Garage
Cet exemple de maison contemporaine, composée de 6 pièces et développant 119 m² habitables, se compose :
Au rez-de-chaussée :
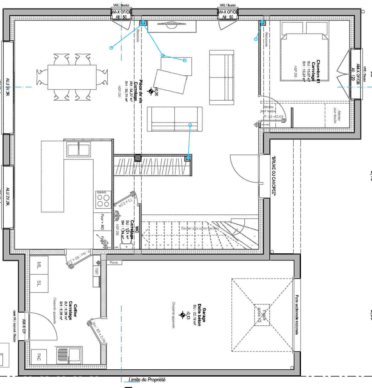
- Une entrée
- Une pièce de vie de 56 m²
- Une cuisine ouverte
- Une chambre
- Des WC séparés
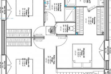
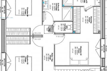
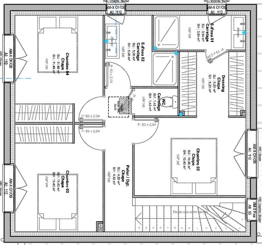
À l’étage :
- Une chambre parentale avec salle d’eau attenante et dressing
- Une seconde chambre
- Une salle d’eau
- Des WC séparés
Annexes
- Un garage attenant
Pour plus de renseignements, contactez notre équipe commerciale MAISONS CRÉATION : 02 99 05 36 46
Informations complémentaires
| Chambre(s) : 4 | Salle(s) de bain : 2 | Surface habitable : 119 m² |
| Surface terrain : 425 m² | Surface annexe : 56 m² | Garage(s) : 1 |
| Prix : 333 500 € |
Géolocalisation du bien
*Terrain proposé et vendu par notre partenaire foncier selon disponibilité et autorisation de publicité, prix du terrain hors frais de notaire et d’hypothèque.
Prix maison : hors papiers peints, peintures, revêtements de sol dans les chambres, cuisines, meubles vasques, et faïences (modifiable sans préavis, prix variables suivant les prestations souhaitées) hors frais d’hypothèque.




