Idéalement situé à Crevin!
Située à Crevin, à 20 min de Rennes, à proximité de Bourg-des-Comptes, Corps-Nuds et Laillé, sur l'axe Rennes-Nantes, cette maison dispose d'un jardin de 531m², non viabilisé.
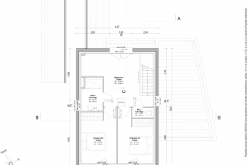
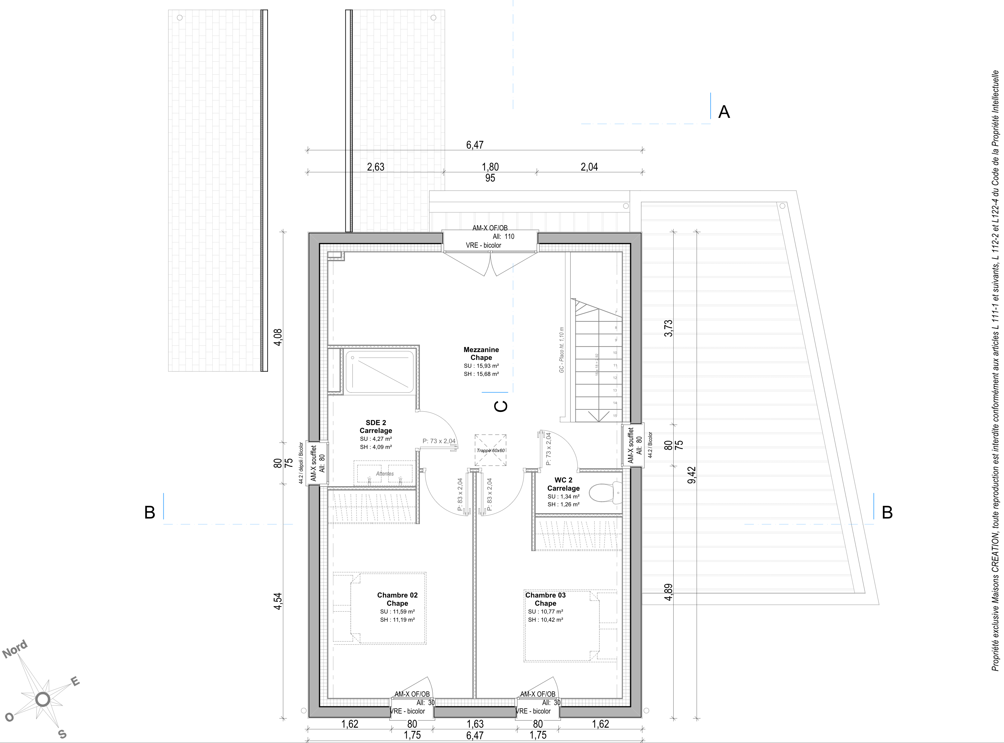
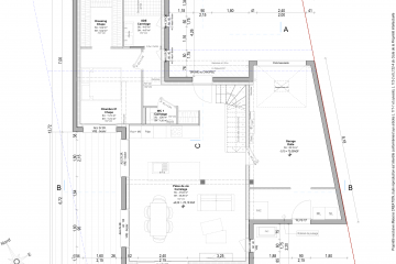
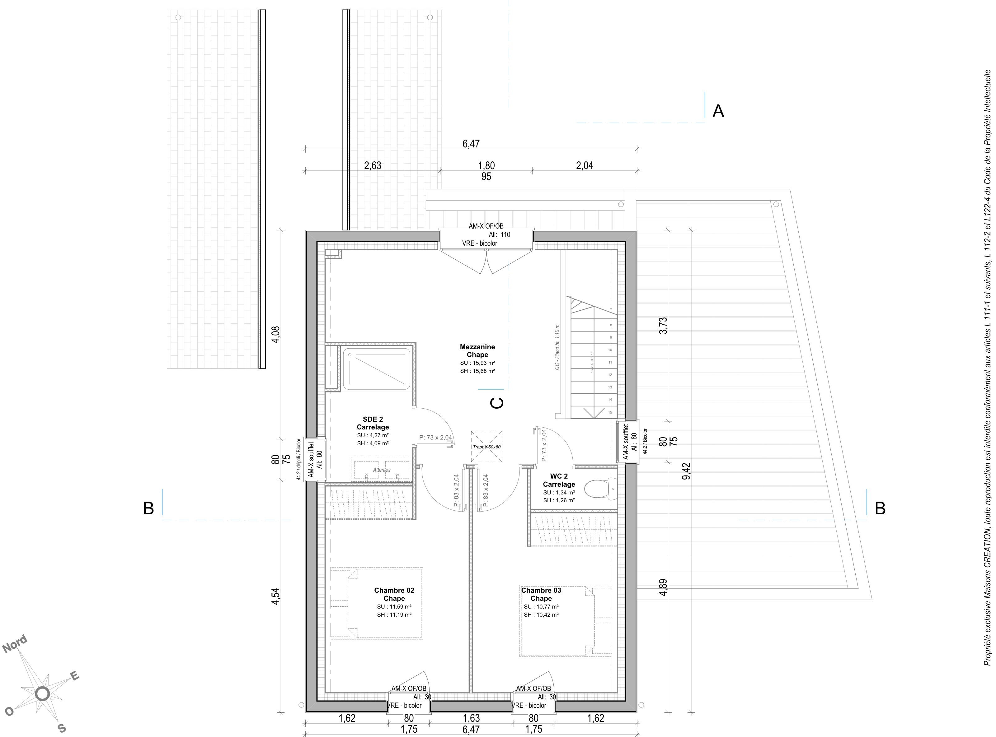
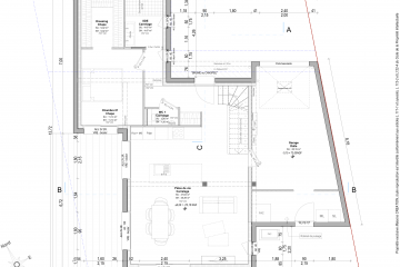
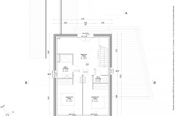
Cette maison de 110m² comprend :
* au rez-de-chaussée : une pièce de vie de 45m² avec cuisine ouverte, des WC séparés, une chambre parentale de 21m² avec salle d'eau et dressing,
* à l'étage : 2 chambres, une mezzanine de plus de 15m² ayant la possibilité de devenir une 3ème chambre, des WC séparés, une salle d'eau.
Cette maison dispose également d'un garage attenant.
Votre projet Maison + Terrain à partir de 324600€ (Hors frais).
NON MANDATÉ POUR LA VENTE DES TERRAINS
Maisons CREATION Rennes n’est pas chargé de réaliser la vente des terrains à bâtir mentionnés dans ces annonces.
Maisons CREATION Rennes agit seulement en qualité de constructeur.
Informations complémentaires
| Chambre(s) : 4 | Salle(s) de bain : 2 | Surface habitable : 110 m² |
| Surface terrain : 531 m² | Surface annexe : 45 m² | Garage(s) : 1 |
| Prix : 334 600 € |
Géolocalisation du bien
*Terrain proposé et vendu par notre partenaire foncier selon disponibilité et autorisation de publicité, prix du terrain hors frais de notaire et d’hypothèque.
Prix maison : hors papiers peints, peintures, revêtements de sol dans les chambres, cuisines, meubles vasques, et faïences (modifiable sans préavis, prix variables suivant les prestations souhaitées) hors frais d’hypothèque.





