MAISONS CRÉATION vous propose un projet de construction situé à Combourg, à mi-chemin entre Rennes et Saint-Malo, dans une commune offrant un cadre de vie agréable et une attractivité reconnue.
La commune dispose notamment d’une gare SNCF, de services de santé, d’un parcours scolaire de la maternelle au lycée ainsi que d’équipements sportifs.
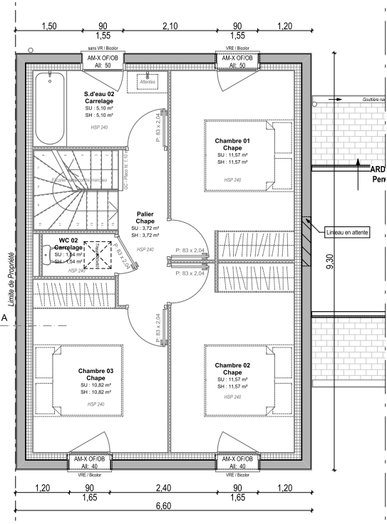
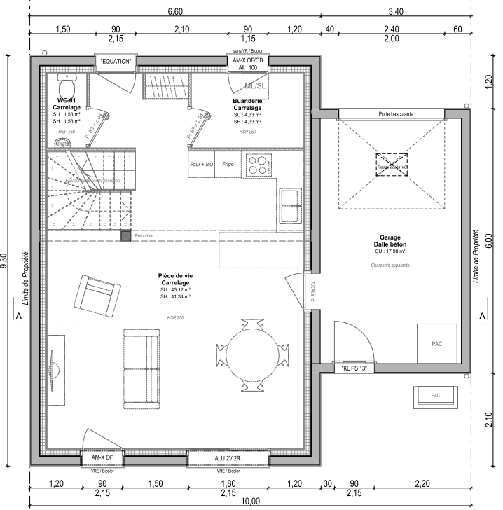
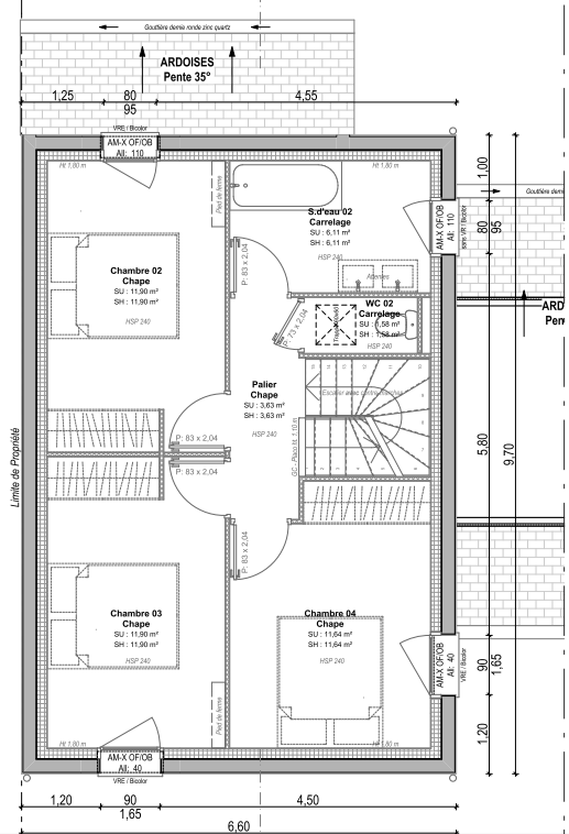
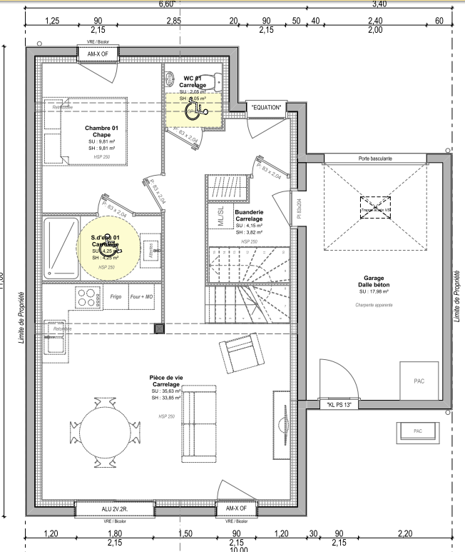
Maison 92 à 101 m² – 3 à 4 chambres
Cet exemple de maison, idéal pour un couple de primo-accédants ou un investisseur, propose une surface habitable comprise entre 92 et 101 m², avec :
- 3 ou 4 chambres, selon la configuration retenue
- Un projet entièrement personnalisable, pour y vivre ou pour investir
Les clôtures et murets proposés sont compris dans le prix indiqué.
Pour de plus amples renseignements, contactez notre équipe commerciale MAISONS CRÉATION : 02 99 05 36 46
Informations complémentaires
| Chambre(s) : 3 | Salle(s) de bain : 2 | Surface habitable : 92 m² |
| Surface terrain : 250 m² | Surface annexe : 43 m² | Garage(s) : 1 |
| Prix : 216 981 € |
Géolocalisation du bien
*Terrain proposé et vendu par notre partenaire foncier selon disponibilité et autorisation de publicité, prix du terrain hors frais de notaire et d’hypothèque.
Prix maison : hors papiers peints, peintures, revêtements de sol dans les chambres, cuisines, meubles vasques, et faïences (modifiable sans préavis, prix variables suivant les prestations souhaitées) hors frais d’hypothèque.






