Idéal pour un couple de Primo Accédant ou investisseur à Combourg !
Située à mi-chemin entre Rennes et Saint-Malo, Combourg est une ville bénéficiant d'un emplacement privilégié. Son cadre de vie agréable en fait une région touristique prisée et attractive, avec une population croissante dépassant les 6 000 habitants. La ville offre une gamme complète de services, notamment sa gare SNCF, des services de santé et une éducation de la maternelle au lycée, ainsi que des équipements sportifs.
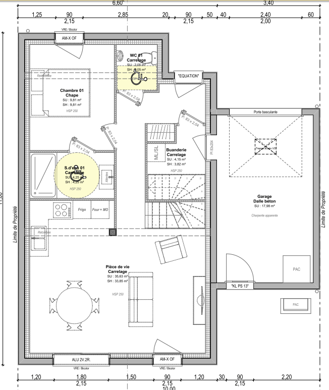
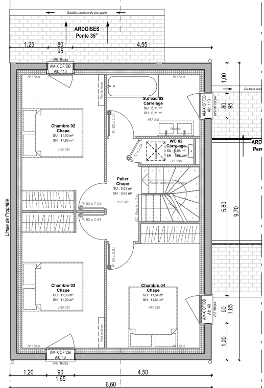
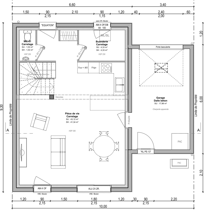
MAISONS CREATION vous propose de personnaliser votre maison allant de 92 à 101 m2 comprenant 3 ou 4 chambres pour y vivre ou pour investir !
Les clôtures et murets proposés sont compris dans le prix indiqué.
N'hésitez pas à nous contacter pour de plus amples renseignements
Informations complémentaires
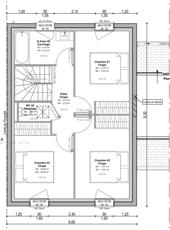
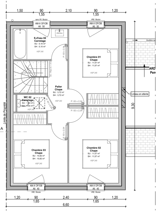
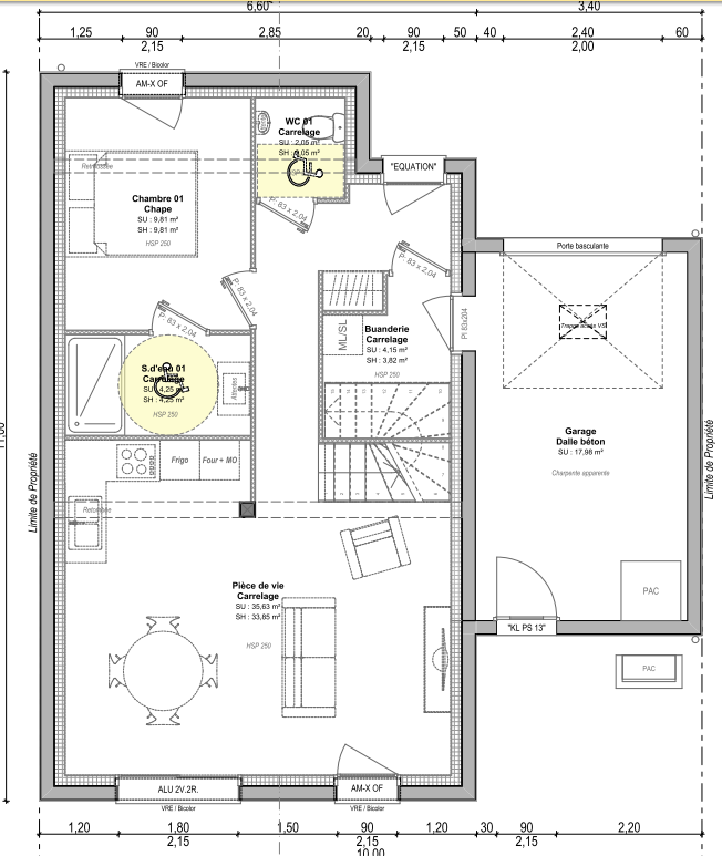
| Chambre(s) : 3 | Salle(s) de bain : 2 | Surface habitable : 92 m² |
| Surface terrain : 250 m² | Surface annexe : 43 m² | Garage(s) : 1 |
| Prix : 216 981 € |
Géolocalisation du bien
*Terrain proposé et vendu par notre partenaire foncier selon disponibilité et autorisation de publicité, prix du terrain hors frais de notaire et d’hypothèque.
Prix maison : hors papiers peints, peintures, revêtements de sol dans les chambres, cuisines, meubles vasques, et faïences (modifiable sans préavis, prix variables suivant les prestations souhaitées) hors frais d’hypothèque.








